Электронная почта:

Запрос в мессенджер:

Тел. и время работы:
+7 (812) 207-52-94
Пн-Вс 7:00 - 20:00
Заказ оборудования по телефону:
8 (800) 511-59-77
Выбранный город:
Санкт-Петербург
Митрофаньевское шоссе, 8А, Лит. Б
  • Надежные бренды и подтвержденные стандарты качества:
Заказ оборудования по телефону: 8 (800) 511-59-77

Производство металлических контейнеров для промышленности и стратегических объектов

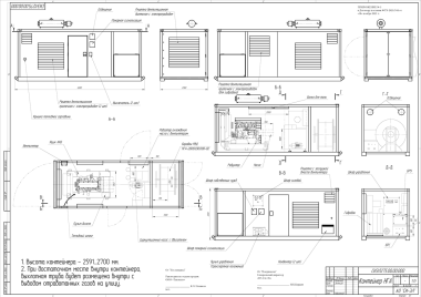
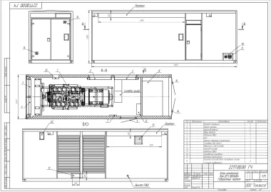
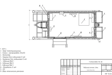
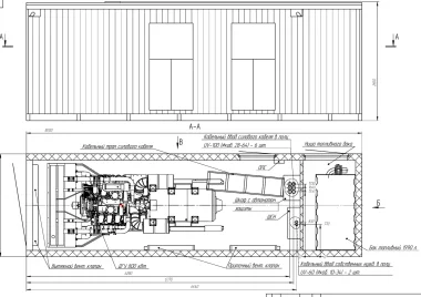
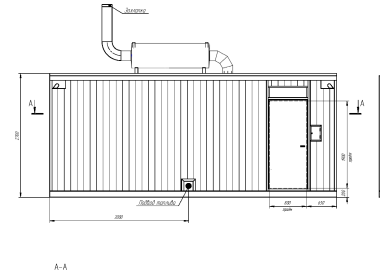
ООО «Техэкспо» производит металлические контейнеры длиной от 3 до 20 метров для промышленного и энергетического оборудования – дизель-генераторных установок, комплектных трансформаторных подстанций, азотных станций, модульных ЦОД, котельных, компрессоров и насосов. Купить металлический контейнер можно со степенью огнестойкости металлического цельносварного блок-контейнера – II. Контейнеры типа Север подходят для дизельных и газопоршневых электростанций. Стальной профлист - формообразующий и одновременно силовой элемент: выбор толщины и сечения позволяет усиливать грузоподъёмность.

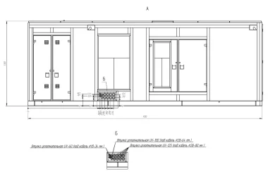
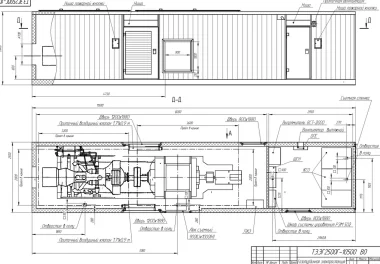
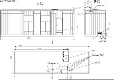
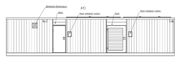
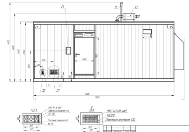
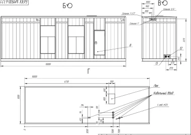
Наружная обшивка выполнена из профилированных листов стали толщиной 1,5 мм. Пол цельносварной, из рифленой стали толщиной 4 мм, приварен к металлическому основанию и прерывистым швом - к поперечным балка. Рифленый лист придает усиленную жесткость, что исключает нарушение геометрии и расхождение узлов при транспортировке и погрузке. Внутренняя обшивка стен и потолка выполнена профилированным металлическим листом светло-серого цвета. Крышки проемов - из стального листа толщиной не менее 1,5 мм, оборудованы фиксаторами для открытого положения и щеколдами для закрытого положения.

Производим металлические контейнеры:

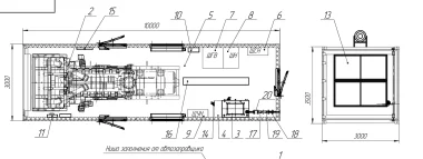
Подготовленность конструкции к последующему утеплению и отделке отличает наши контейнеры от «морских». Контейнер имеет негорючую теплоизоляцию и рассчитан для работы в диапазоне температур окружающего воздуха от - 50 до +50 град.С. Технологический проем для монтажа и демонтажа основного оборудования - в торцевой стене контейнера, совмещенной с выпускным клапаном. Вентиляционные люки с установленными в них жалюзийными решётками и крышками над ними с наружной стороны контейнера.

Нужен металлический блок-контейнер под оборудование?
Инженер уточнит назначение контейнера, габариты, условия эксплуатации и подготовит рекомендации по комплектации.
Нужен блок-контейнер под оборудование?

Проекты Техэкспо с производством контейнеров за 2021-2023 гг.:

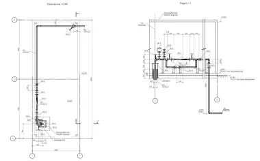
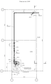
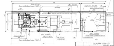
  • Два контейнера 13м на шасси длиной 14 м для ДЭС 4 МВт на АЭС «Руппур»

    Госкорпорация «Росатом»

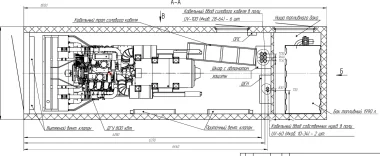
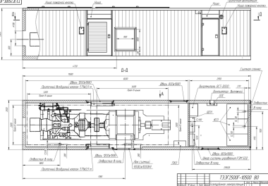
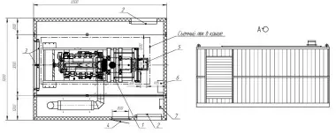
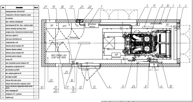
    В феврале 2022 года ООО «Техэкспо» изготовило 2 контейнера габаритами 14000х3200х4700 мм для двух ДЭС по 2 МВт каждая. Установлены на колесные автомобильные полуприцепы габаритами 14000х3200х4700 мм. Конструкция обеспечивает их надежное крепление.

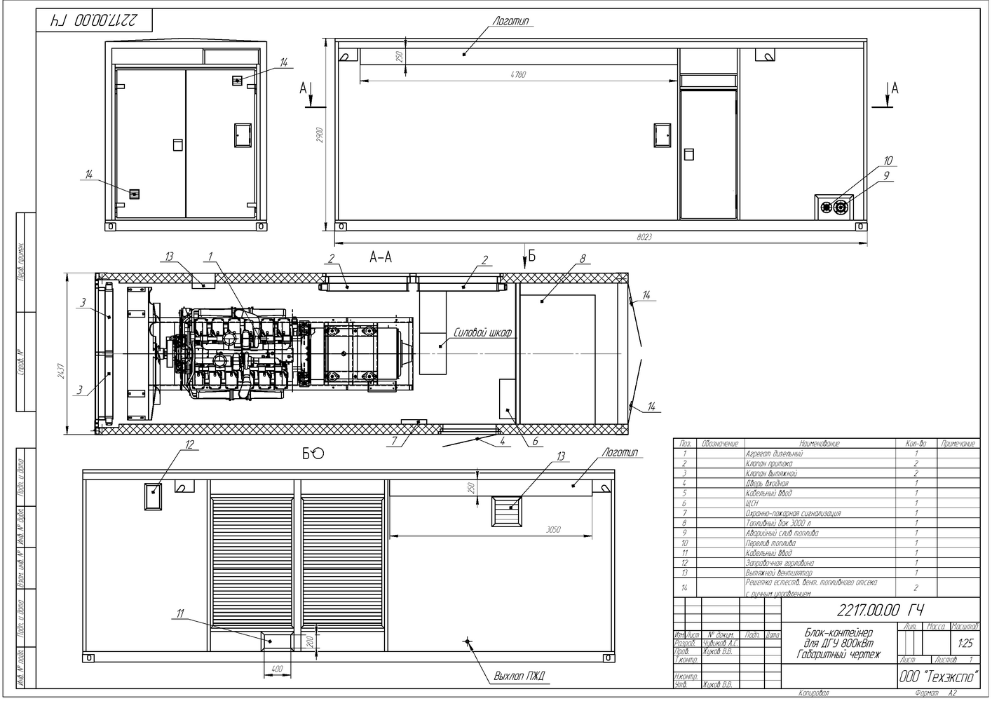
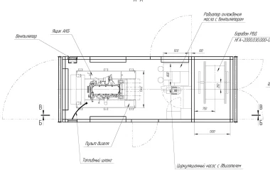
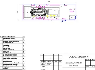
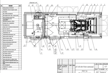
    Блок-контейнеры разделены на отсеки: в топливном отсеке - топливный бак; в агрегатном отсеке - ДГУ, ящик аккумуляторных батарей, ручной топливозакачивающий насос; в электротехническом отсеке - щитовое оборудование систем автоматики управления и приборы охранной сигнализации. Отсеки разделены шумоизолированной перегородкой. Перегородка топливного отсека и дверь в соседний отсек имеют 2-ю степень огнестойкости. Каждый отсек имеет два эвакуационных выхода. В полотне дверей между отсеками предусмотрено смотровое окно из термостойкого стекла.

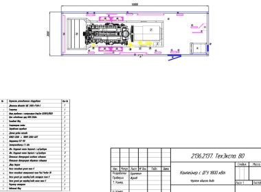
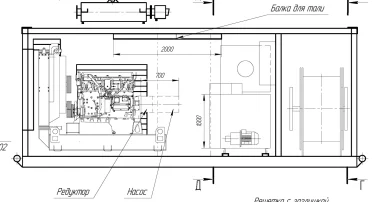
  • Четыре контейнера для энергокомплекса 3 МВт буровой установки АО «Росгеология»

    АО "Росгеология"

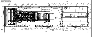
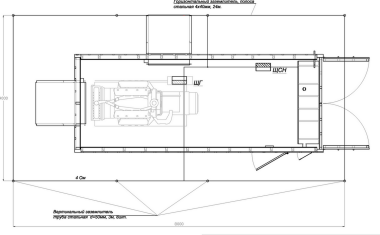
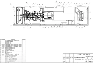
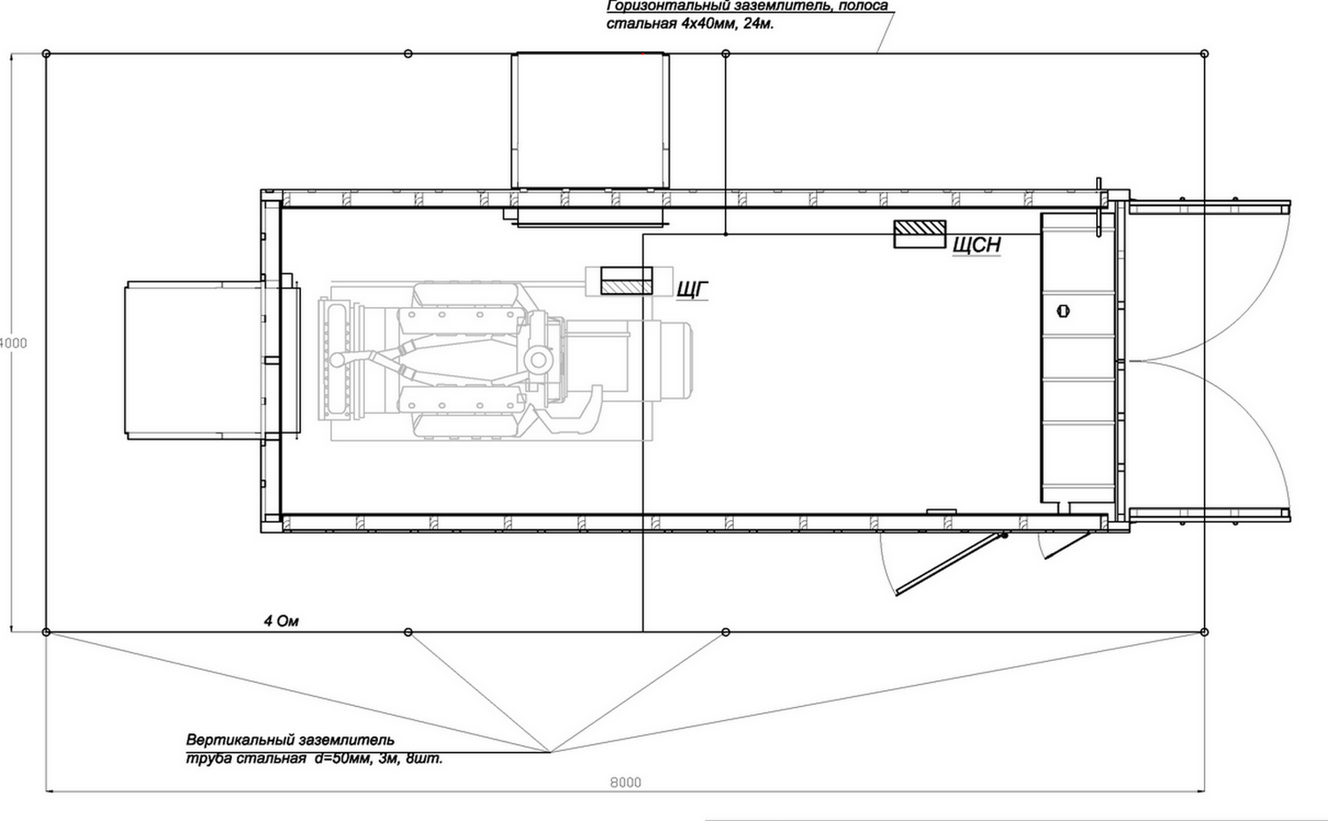
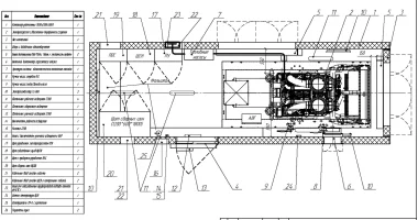
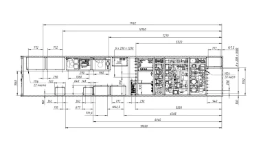
    Энергокомплекс изготовлен из четырёх блоков: три контейнера с габаритами 12500х2450х3000 мм на полозьях (салазках) для трех ДГУ Cummins и контейнер модуля управления, в котором находятся помещение РУ-6,3 кВ и помещение оператора.

    Контейнеры укомплектованы топливной, масляной системами, системами охлаждения, управления, освещения, отопления, вентиляции, пожарной безопасности, газовыхлопа. В помещении РУ-6,3 установлены высоковольтное распределительное устройство, шкаф оперативного питания, щит собственных нужд (ЩСН). Энергокомплекс предназначен для использования в качестве основного источника электроснабжения буровой установки по линии 6,3 кВ.

  • Два контейнера энергокомплекса 1200 кВт для производителя биопрепаратов «Генериум»

    АО «Генериум»

    В апреле 2021 года «Техэкспо» изготовило два блока для двух ДГУ мощностью 600 кВт. Цельносварные с габаритами 7000х2500х3000 мм. В одном металлическом блок-контейнере в отдельном отсеке размещен дополнительный топливный резервуар на 2000 л, который является общим для двух ДЭС. Он соединен системой топливопроводов для подачи топлива во вторую ДЭС.

  • Четыре контейнера для ДГУ 1200 в параллели с РУ-6,З кВ для производства пиломатериалов

    Лесоперерабатывающее производство

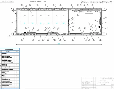
    В 2019 и 2022 гг на производстве «Техэкспо» было изготовлено четыре утепленных цельносварных контейнера для четырех ДЭС напряжением  6,3 кВ, работающих в параллели. Три контейнера типа «Север» с габаритами: 9200х2800х3100 мм и один - 10000х3000х3600 мм. В контейнерах установлены ДГУ и распределительные устройства РУ-6,3 кВ на ячейках КРУС-СЭЩ-75.

  • Контейнер для метеорологической станции АСКРО для Ленинградской атомной электростанций-2 (ЛАЭС-2)

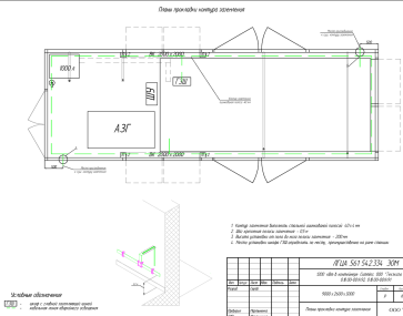
    В 2019 г. ООО «Техэкспо» изготовило металлический контейнер для метеорологической станции АСКРО для Ленинградской атомной электростанций-2 (ЛАЭС-2). Автоматизированная система контроля радиационной обстановки (АСКРО) предназначена для непрерывного контроля радиационной и метеорологической обстановки. Размещены блоки питания, блок центрального, сетевого оборудования.

  • Контейнер для опытного образца электролизной установки генерации водорода для Росатома

    ООО «НПО «Центротех» по заказу АО «Концерн Росэнергоатом»

    В 2023 году на производстве ООО «Техэкспо» был изготовлен контейнер с системами управления, сигнализации и безопасности для размещения в нем опытного образца электролизной установки генерации водорода высокого давления производительностью 50 нм3/ч (ЭлУ-50).

    Электролизная установка для производства водорода разработана специалистами ООО «НПО «Центротех» по заказу АО «Концерн Росэнергоатом» и не имеет аналогов в России. Это устройство промышленного назначения для генерации водорода на базе щелочных матричных электролизных элементов. В процессе электролиза производится водород, кислород.

  • Контейнер с внутренней системой шумоглушения для бизнес-центра в Москве

    Группа компаний «А101»

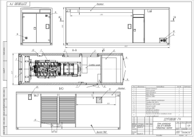
    В июле 2022 года компания «Техэкспо» изготовила цельносварной контейнер с разборной крышей и глушителем внутри для МФК «Прокшино» в Москве. Габариты составляют 6500х5000х3000 мм. Наружная поверхность газовыхлопных трубопроводов ДГУ в местах возможного доступа обслуживающего персонала изолирована негорючим материалом, узлы прохода газовыхлопного трубопровода изолированы относительно стенок и защищены от атмосферных осадков.

    Над местом размещения ДГУ предусмотрена съемная крыша. Модуль имеет негорючую теплоизоляцию толщиной 100 мм, корпус обеспечивает прочность, цельносварной пол выполнен из рифленой стали толщиной 3 мм и приварен к металлическому основанию и к поперечным балкам. Кровля – плоская, с уклоном и наружным водостоком.

  • Контейнерный ЦОД для Санкт-Петербургского университета Государственной противопожарной службы МЧС России

    Санкт-Петербургский университет Государственной противопожарной службы МЧС России

    В 2021 году «Техэкспо» изготовило контейнерный центр обработки данных (ЦОД) для для Санкт-Петербургского университета Государственной противопожарной службы МЧС России. Контейнер оснащен системами мониторинга, ВРУ с внешним байпасом для ИБП 250кВа, ИБП PitON ХТ-серия 200 кВА, 80 аккумуляторов DELTA HRL 12-260W, 2 батарейных шкафа. Контейнер представляет собой цельносварную конструкцию габаритами 13500*3700*3150 мм.

  • Контейнер с топливными резервуарами на 4500 л для Боткинской больницы в Москве

    ГБУЗ ГКБ им. С.П. Боткина ДЗМ

    В апреле 2022 года «Техэкспо» изготовило цельносварной контейнер с топливными резервуарами на 4960 литров для ДГУ 1200 для для ГБУЗ ГКБ им. С.П. Боткина Департамента здравоохранения города Москвы. Габариты контейнера: 9150х2450х2900 мм. Он состоит из агрегатного и трех топливных отсеков. В каждом отсеке установлен топливный бак объемом 950 л. Пол, стены и потолок контейнера имеют слой теплоизоляции толщиной не менее 100 мм.

  • Контейнер связи на салазках для телекоммуникационного оборудования Газпрома

    ПАО «Газпром»

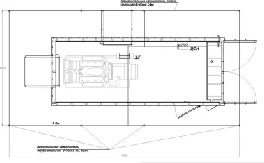
    В 2020 г. ООО «Техэкспо» изготовило на своем производстве контейнер связи на салазках для телекоммуникационного оборудования Газпрома. Габариты контейнера - 5795х2420х3100 мм, масса – 4,5 тонны, степень огнестойкости по СНиП 21-01-97 - III. Мобильный комплекс связи оснащен автоматической установкой пожарной сигнализации, ЩСН, кондиционерами и обогревателями, вводами для ДГУ, ИБП и сети. Мачта из 4 секций перевозится в сложенном виде вместе с контейнером на салазках со стороны торца.

  • Три контейнера для ДГУ Cummins в резерв для водохранилища

    ОАО «Водстрой»

    В 2021 году «Техэкспо» изготовило три цельносварных, утепленных и антивандальных контейнера с габаритами 9000х3000х3500 мм. для трех ДГУ Cummins мощностью 1200 кВт. В процессе создания потребовалось модернизировать контейнер, чтобы топливо поступало с внешней стороны. Инженерам «Техэкспо» удалось реализовать дополнительную опцию, установить ручной насос Р 0,8/30-01 внутри контейнера и подключить ДГУ к внешнему топливному резервуару.

  • Контейнер в составе электростанции для ФГБУ «Главрыбвод» в Карелии

    ФГБУ «Главрыбвод»

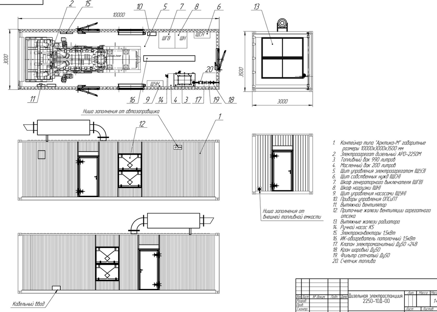
    В 2022 году «Техэкспо» изготовило блок-контейнер металлический с габаритами 10000х3000х3500 мм для ДГУ мощностью 1600 кВт. Это утепленный цельносварной контейнер со встроенными системами газовыхлопа, вентиляции, системы отопления, освещения, пожарной безопасности и другими. Электростанция предназначена для использования в качестве резервного источника электроэнергии селекционно-племенного центра рыбоводства «Главрыбвод» в п. Сосновец (Карелия).

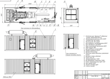
  • Два контейнера для ДГУ 800 кВт для контейнерного терминала (КТСП) в Петербурге

    ЗАО «Контейнерный терминал Санкт-Петербург» (КТСП)

    В 2021 году на производстве «Техэкспо» были изготовлены два цельносварных модуля габаритами 8000х2500х2900 мм для ЗАО «Контейнерный терминал Санкт-Петербург». В каждом блоке размещен дополнительный топливный бак на 1000 литров и дизель-генераторная установка с двигателем Cummins QST30G4 и альтернаторами Stamford HCI634J.

  • Два блок-контейнера для высоковольтного энергокомплекса в Усть-Луге

    Китайская национальная химическая инженерная и строительная корпорация Севен

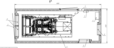
    В 2021 году на производстве «Техэкспо» изготовлено два блок-контейнера для высоковольтного энергокомплекса мощностью 4 МВт для Балтийского газохимического комплекса в Усть-Луге. В контейнеры габаритами 10000 х 3000 х 3450 мм установлены ДГУ с панелью управления DSE 8610, щит собственных нужд ЩСН, топливный бак 1000л в раме ДГА, генераторная ячейка.

  • Контейнер для ДГУ 800 кВт и топливным отсеком для переработки лома цветных металлов

    ООО "Нординвэнс"

    В июле 2022 года «Техэкспо» изготовило утепленный цельносварной контейнер габаритами 8000х2500х2900 мм., состоящий из двух отсеков. В агрегатном отсеке размещено оборудование ДГУ, в топливном отсеке - топливный резервуар на 3 000 л. Снаружи контейнера выведен раструб для возможности заправки от пистолета топливозаправщика. Контейнер устанавливается на автомобильный прицеп модели 849062 и грузоподъёмностью 20 000 т. И крепится к нему с помощью твистлоков.

  • Блок-модуль для технологического оборудования длиной 12 метров (электролизная установка)

    Научно-производственная фирма "Невский кристалл"

    В июне 2022 года компания «Техэкспо» на собственном производстве изготовила блок-модуль длиной 12 метров для технологического оборудования научно-производственной фирмы "Невский кристалл". Габариты блок-модуля для технологического оборудования: 12000х2400х2600 мм.

  • Контейнер для ДГУ Cummins 640 кВт для погрузочного крана в Мурманске

    ЗАО «СММ»

    В 2022 году на производстве «Техэкспо» был изготовлен металлический цельносварной контейнер для ДГУ мощностью 640 кВт. Габариты: 6000х2400х2700 мм. (ДхШхВ). Утеплитель – 100 мм. Блок рассчитан на работу в диапазоне температур окружающего воздуха от -40 до +50°С. ДГУ предназначена для питания самоходного портового крана. Блок устанавливается непосредственно на него. Дополнительно был изготовлен отдельностоящий топливный резервуар объемом 5000 л. Из этого резервуара основной топливный бак ДГУ пополняется автоматически.

  • Два контейнера для ДГУ 420 и 600 кВт для резерва шахтового оборудования

    ООО «УгольЭкспортТрейд»

    Два блок-контейнера были изготовлены в июле 2022 года на производстве «Техэкспо». Один блок контейнер металлический с габаритами 6000х2400х2800 мм в нем размещена ДГУ на 600 кВт, второй с габаритами 5000х2400х2600 мм и ДГУ на 400 кВт. Оба контейнера оснащены системами вентиляции, отопления, основного и аварийного освещения, ЩСН, системой пожарно-охранной сигнализации и автоматического аэрозольного пожаротушения. Предусмотрены петли для верхней строповки.

  • Три контейнера для насосной установки «Белоруснефти»

    Производственное объединение «Белоруснефть»

    В феврале 2022 г. «Техэкспо» изготовило для белорусской государственной нефтехимической компании «Белоруснефть» три цельносварных контейнера длиной 6,5 м, выполненных в виде металлического модуля из стали 09Г2С (каркас). Блок контейнеры металлические установлены на санное основание (салазки), с возможностью транспортировки тросом.

    Корпус состоит из двух отсеков — утепленного и неутепленного. Утепленный отсек служит для размещения оборудования ДГУ. В неутепленном отсеке располагается барабан рукава высокого давления (для насоса). Для заправки дизельным топливом снаружи предусмотрена топливная горловина с защитной крышкой. Внутри обоих отсеков монтируется освещение и пожарная сигнализация.

  • Контейнер для ДГУ 320 кВт для ковидного госпиталя в Мурманске

    ГОАУЗ "МОЦСВМП"

    В 2021 году «Техэкспо» изготовило цельносварной металлический с габаритами 5000х2300х2700 мм. В контейнере размещена ДЭС с двигателем Scania DC13 072A 02-12 (Швеция) и генератором Leroy Somer TAL047A. Изготовление, монтаж оборудование и доставка на объект заняло всего один месяц. ДЭС резервирует работу жизненно важных систем госпиталя для больных Covid-19 в государственном областном автономном учреждении здравоохранения "Мурманский областной Центр специализированных видов медицинской помощи".

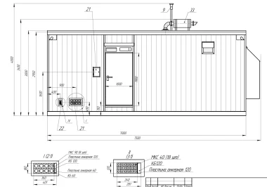
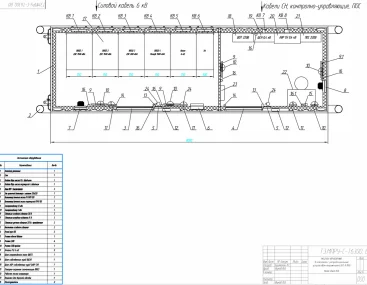
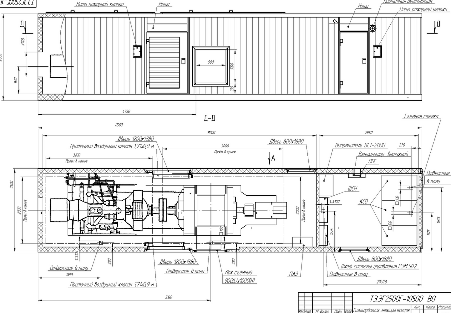
  • Контейнеры для газотурбинной электростанции 2500 кВт

    Особенности: специальная рама для электростанции, съёмные люки в крыше над генератором и двигателем для их монтажа, вентиляционные люки с жалюзийными решётками и воздушными управляемыми клапанами.

  • Цельносварной блок-контейнер металлический для размещения газотурбинной электростанции АЭС-2500

    На производстве "Техэкспо" был изготовлен металлический цельносварной контейнер для газотурбинной электростанции. Блок разделен на два отсека - агрегатный отсек и электротехнический отсек с размещением высоковольтных ячеек. Габариты: 11500х2500х2800 мм.

Получите расчет металлического блок-контейнера

Игорь Ишин
Игорь Ишин
Главный инженер проектов
  • Подберем конструкцию под ДГУ, КТП, насосное, компрессорное или другое оборудование
  • Уточним габариты, утепление, вентиляцию, проемы и инженерные системы
  • Подготовим предварительную комплектацию и расчет стоимости

Производство контейнеров для дизельных электростанций 1 - 2 МВт

По ТЗ для производства контейнеров изготовим силовой шкаф (ШС), шкаф АВР, систему дистанционного мониторинга и управления, дополнительный топливный бак объемом до 15000 л.

Комплектация контейнеров для дизельных электростанций 1-2 МВт



Наша компания осуществляет пакетирование (установку) оборудования в контейнеры собственного производства, т.е пакетирование.  В состав модульной ДЭС входят:

  • блок-модуль для размещения и термоизоляции оборудования;
  • система освещения (рабочее, аварийное, ремонтное);
  • система отопления и вентиляции с обогревателями и воздушными клапанами (сами изготавливаем УВК);
  • система газовыхлопа в специальной гильзе из высокотемпературной термоизоляции;
  • система топливоснабжения с дополнительным баком, насосом топливоподкачки для увеличения времени автономной работы ДЭС;
  • шкаф ЩСН, управляющий всеми системами;
  • ОПС (охранно-пожарная сигнализация) и система автоматического пожаротушения.

Комплектация блок контейнера металлического для дизель-генератора 60 кВт


Контейнеры, изготовленные на нашем производстве


Нужно разместить ДГУ или инженерное оборудование в контейнере?
Оставьте заявку - специалист уточнит состав оборудования и требования к контейнерному исполнению.
Обсудить контейнерное исполнение?

Станции глубокой очистки сточных вод АкваТехэкспо БИО

Станция предназначена для биологической очистки хозяйственно-бытовых сточных вод, поступающих с площадки объекта. Станция размещается в блочно-модульном здании, который представляет собой цельносварной технический контейнер.

  • Производительность станции - 13,0 м3/сутки
  • Габариты контейнера: 9000×2490×3000 мм

Блок-модуль поставляется на объект со смонтированным и испытанным технологическим оборудованием, электросиловым, насосным, компрессорным и другим оборудованием, запорно-регулирующей арматурой, системой отопления, вентиляции, освещения, сигнализации, электроснабжения, первичными средствами пожаротушения. Станция работает в автоматическом режиме без постоянного обслуживающего персонала. Емкостное оборудование станции изготовлено в заводских условиях из коррозионностойкой стали. Станция устанавливается на фундаментное железобетонное основание, представляющее собой монолитную плиту.

Работа станции глубокой очистки сточных вод АкваТехэкспо БИО основана на технологии полной биологической очистки сточных вод с доочисткой, включая процессы нитри-денитрификации и удаления фосфора, до норм сброса в водоемы рыбохозяйственного назначения. Предусмотренная технология позволяет достичь показателей качества очищенных сточных вод, соответствующих требованиям СанПиН.

Станция глубокой очистки сточных вод АкваТехэкспо БИО

Станция глубокой очистки сточных вод АкваТехэкспо БИО


Блочно-модульные насосные станции АкваТехэкспо БМНС

Комплексное здание насосной станции для очистки исходной воды и подачи питьевой воды потребителю, а также на пожаротушение площадки. Здание насосной станции - это блок-модуль полной заводской готовности с габаритными размерами 17000×6000×3000 мм.

В блок-модуле предусмотрено

  • технологическое оборудование для очистки исходной воды (вода подается от скважинного водозабора);
  • группы насосов для подачи воды на очистку и промывку фильтров;
  • насосная установка подачи очищенной воды из резервуаров потребителю;
  • грузоподъемное оборудование;
  • установка УФ-обеззараживания. 

Блок-модуль поставляется на объект со смонтированным и испытанным технологическим оборудованием, системой отопления, вентиляции, освещения, сигнализации.

  • Для учета расхода воды предусматрены водомерные узлы со счетчиками воды и обводными линиям. Для подачи воды в сеть противопожарного водопровода устанавливаются насосы повышения давления  (1 раб., 1 рез.) с частотным регулированием. Производительность 1-го насоса 63,75 м³/ч, напор 40 м, мощность электродвигателя 22 кВт.
  • Для подачи воды в сеть хозяйственно-питьевого водопровода устанавливаются насосы повышения давления  (1 раб., 1 рез.) с частотным регулированием. Производительность 1-го насоса 5,0 м³/ч, напор 40 м, мощность электродвигателя 1,2 кВт.
  • Для циркуляции воды в резервуаре для хранения запаса воды на хозяйственно-питьевые нужды устанавливаются циркуляционные насосы  (1 раб., 1 рез.) с частотным регулированием.  Производительность 1-го насоса 1,0 м³/ч, напором 20 м, мощность электродвигателя 0,3 кВт. 

 

Производство контейнеров для нефтегазовых компаний


Подберите контейнер под условия вашего объекта

Игорь Ишин
Игорь Ишин
Главный инженер проектов
  • Уточним отрасль, климатическое исполнение и требования к размещению оборудования
  • Поможем определить состав инженерных систем и конструктивных решений
  • Подготовим рекомендации для технического задания и расчета стоимости

Производство контейнеров в 2020 году

Отгрузки контейнеров в 2020 году

  • Контейнер для установки частотных преобразователей и трансформаторов, 8058х2438х3000мм.
  • Контейнеры для стоек ИТ и радио оборудования: 4500х2430х2600 мм и 9000х2430х2600 мм.
  • Контейнеры для бесперебойного электроснабжения военного оборудования (локаторы, системы наблюдения) 3740*2400*2670 мм.
  • Спаренные модули для КТП (трансформаторы и распредустройства) 8058х2438х3000мм.
  • Энергокомплекс для трех ДГУ 8000х9000х3300мм.
  • Контейнер под склад масла.
  • Контейнер 45 футовый 13700х2484х2896 мм

Также есть недорогие варианты блок-контейнеров для оборудования из сэндвич панелей с изоляцией 50 или 100 мм. Модули из сэндвич панелей подходят для оборудования небольшого веса и имеют хорошие теплоизолирующие свойства, аккуратный внешний вид, невысокую стоимость, но обладают малой конструкционной прочностью.

Производство контейнеров из сэндвич панелей

Металлические блок-контейнеры каркасного типа обшиты профлистами 0,5 мм с закладкой теплоизолирующего материала между ними и отличаются низкой ценой, небольшим сроком изготовления, устойчивостью к коррозии.



Дизельные электростанции:
Бюджетные:
Оптимальные по качеству и цене:
Премиальные: