Электронная почта:

Запрос в мессенджер:

Тел. и время работы:
+7 (812) 207-52-94
Пн-Вс 7:00 - 20:00
Заказ оборудования по телефону:
8 (800) 511-59-77
Выбранный город:
Санкт-Петербург
Митрофаньевское шоссе, 8А, Лит. Б
  • Надежные бренды и подтвержденные стандарты качества:
Заказ оборудования по телефону: 8 (800) 511-59-77

Энергокомплекс Cummins 3 МВт для буровой установки АО «Росгеология» с трансформаторами 6,3/0,4 кВ

Общая мощность 3048 кВт
Заказчик АО "Росгеология"
Фото
Задача Изготовить и доставить энергокомплекс в четырех контейнерах на полозьях для электроснабжения буровой установки
Решение

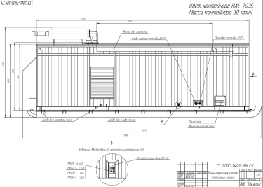
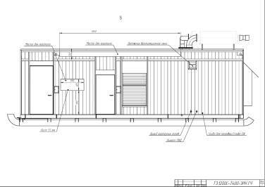
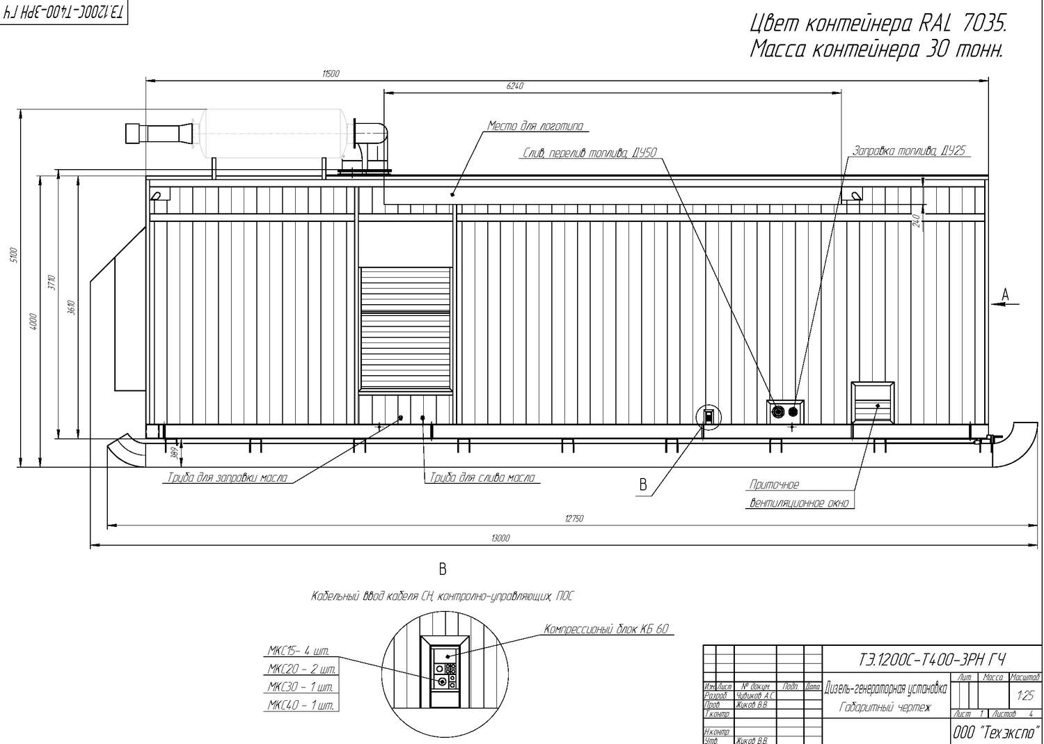
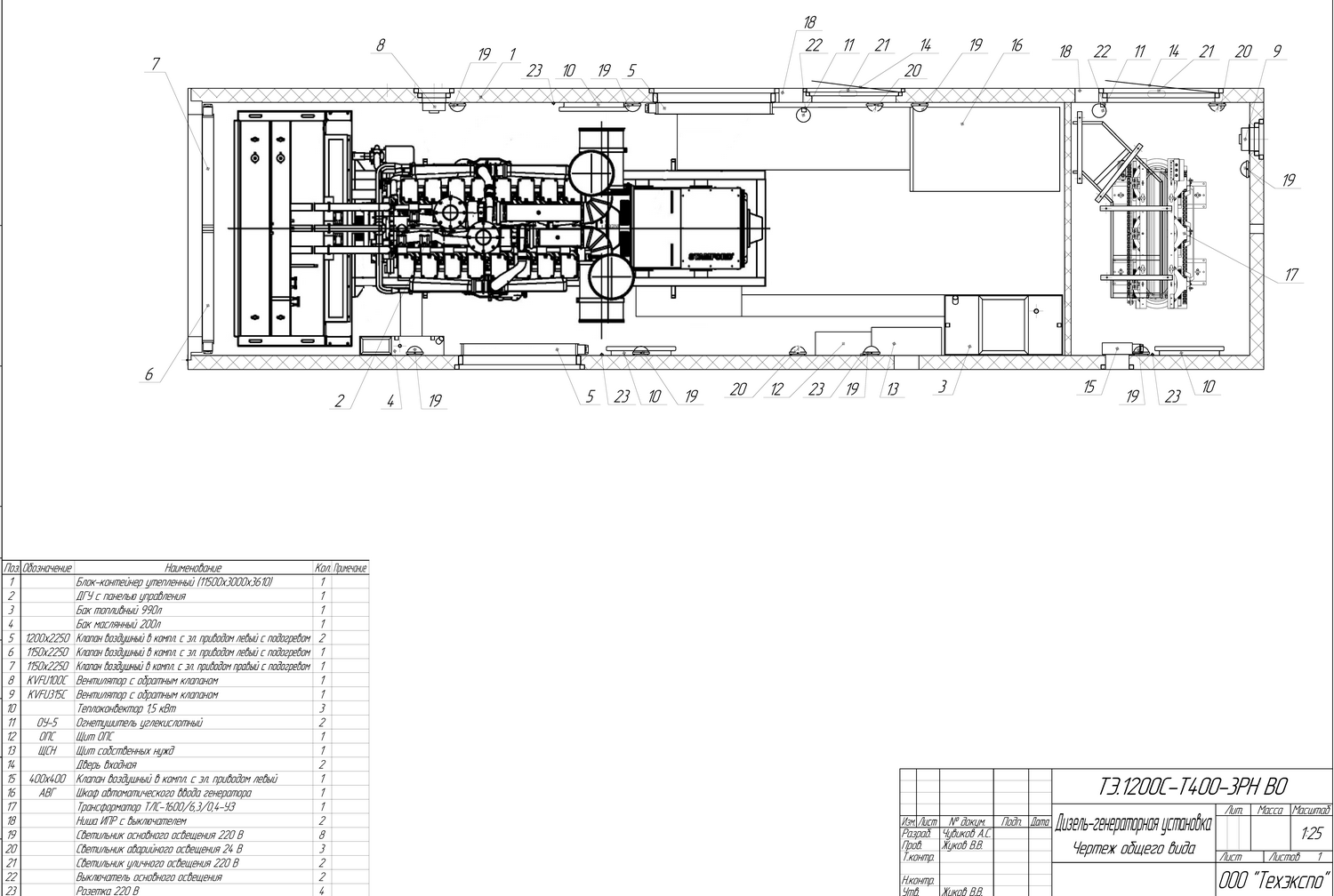
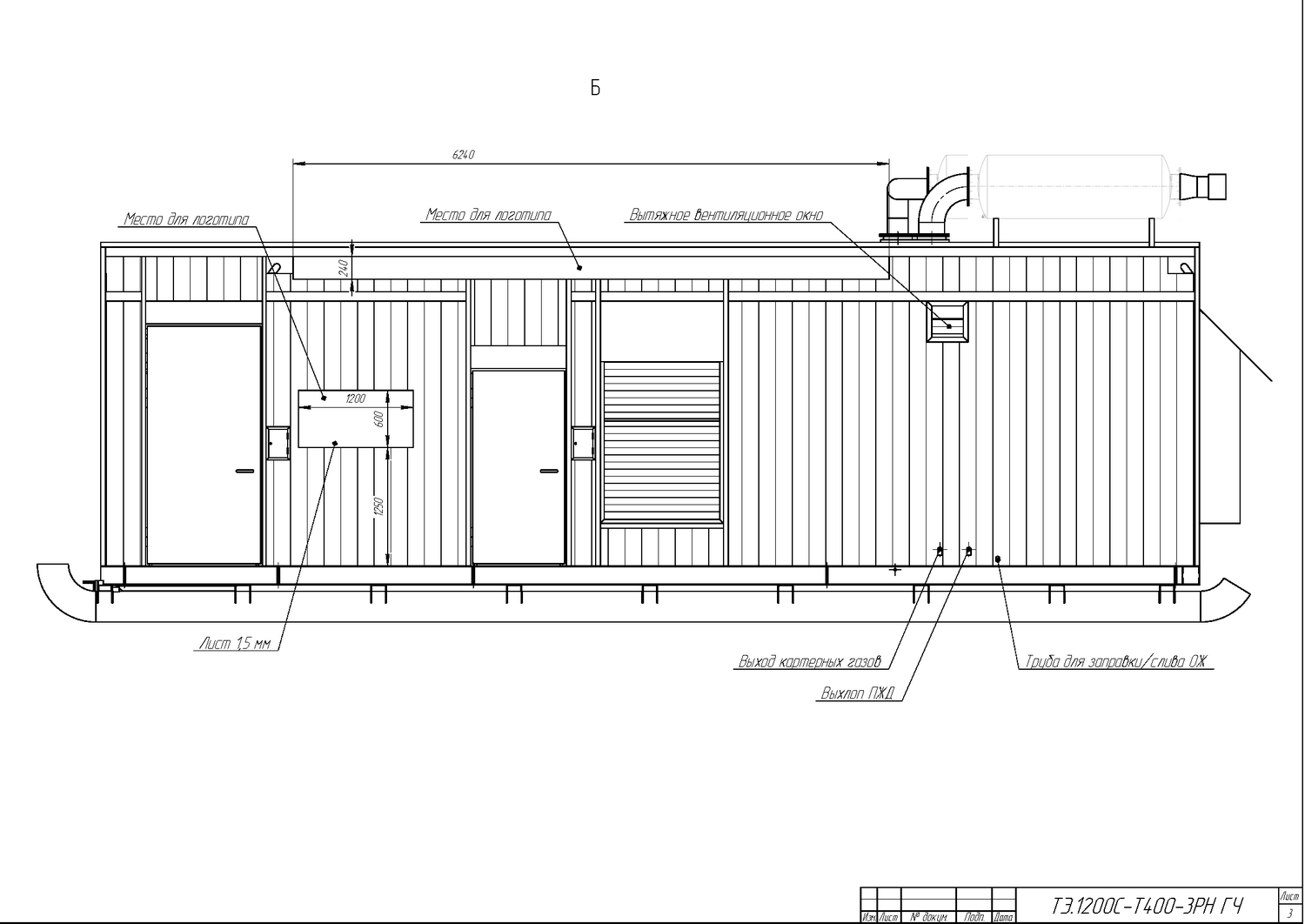
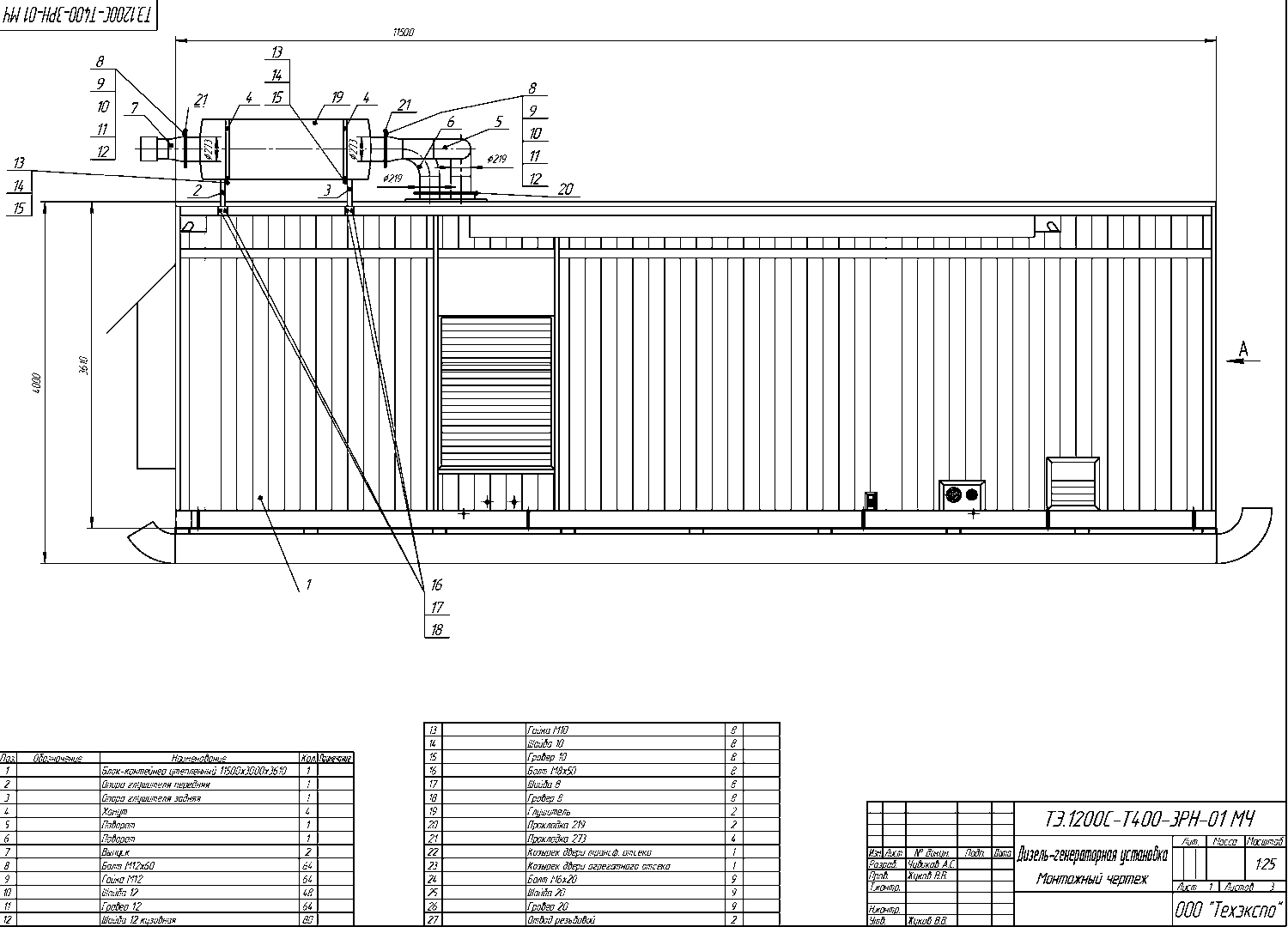
В 2021 г. ООО «Техэкспо» изготовило энергокомплекс на базе ДГУ Cummins суммарной мощностью 3 МВт для электроснабжения буровой установки на скважине Канандинская (Эвенкия, Таймыр) холдинга АО «Росгеология». Энергокомплекс изготовлен в четырёх контейнерах (собственного производства «Техэкспо») габаритами 12500х2450х3000 мм на полозьях (салазках) и предназначен для использования в качестве основного источника электроснабжения буровой установки по линии 6,3 кВ. Энергокомплекс состоит из трех ДГУ Cummins  (две по 1200 кВт и одна – 640 кВт), трансформаторов 6,3/0,4 кВ, модуля управления и вспомогательного оборудования (площадки, лестницы, перила, лотки, кабельная продукция межмодульных связей, высоковольтный кабель КГЭ-ХЛ 3Х95-6кВ, ЗИП и инструменты для ДГУ на 4500 часов).

Контейнеры укомплектованы под ключ системами: топливной, масляной, охлаждения, управления, освещения, отопления, вентиляции, пожарной безопасности, газовыхлопа.

Оборудование энергокомплекса изготовлено в климатическом исполнении УХЛ, категория размещения I согласно ГОСТ 15150-69. Значение температуры воздуха при эксплуатации - от минус 50°С до плюс 40°С, требование по сейсмоустойчивости - 9 баллов по MSK 64.

ДГУ изготовлены на базе двигателей Cummins KTA50G8I, Cummins KTA38-G12 и генераторов тока Stamford PI734C, Stamford HCI634V. Установлены трансформаторы производства «Проектэлектротехника», модели ТЛС-1600/6,3/0,4-УЗ и ТЛС-800/6,3/0,4-УЗ.

Энергокомплекс 3 МВт из ДГУ Cummins с трансформаторами для буровой установки
 

Топливная система электростанции включает в себя:

  • топливная система ДГУ с фильтрами дизельного топлива;
  • фильтр-влагоотделитель, установленный на трубопроводе подачи топлива;
  • топливный бак с 4 датчиками уровня, фильтром грубой очистки и топливомерной трубкой;
  • насос автоматической подкачки топлива в расходный топливный бак из внешней емкости;
  • дублирующий ручной насос;
  • клапан на подающей магистрали (защита от самопроизвольного опорожнения бака);
  • расходомер топлива на магистрали подачи топлива в расходный топливный бак;
  • трубопроводная и запорная арматура, вентили и краны.

Энергокомплекс 3 МВт из ДГУ Cummins с трансформаторами для буровой установки

При выработке топлива в баке до нижнего уровня датчик нижнего уровня выдает сигнал в систему автоматики собственных нужд электростанции для включения электрического насоса подкачки топлива. Заполнение расходного топливного бака производится до момента срабатывания датчика верхнего уровня топлива. Для дублирования в корпус бака установлен датчик аварийно-верхнего уровня топлива, при срабатывании которого выдается сигнал на выключение электрического насоса подкачки топлива. При срабатывании датчика аварийно-нижнего уровня топлива, в систему управления собственными нуждами электростанции передается сигнал на останов ДГУ. Для отвода воздуха и паров топлива установлен трубопровод вентиляции топливного бака с огнепреградительным клапаном. В конструкции топливного бака предусмотрена возможность отстоя и слива воды.

Масляная система обеспечивает возможность ручного долива масла в картер двигателя из расходного масляного бака, а также ручную откачку. В составе системы в каждом контейнере с ДГУ - масляный бак, ручной насос для закачки масла в бак, устройство автоматического долива масла с визуализаций уровня масла в картере, ручной насос для откачки масла из картера дизеля.

На расходном баке смонтирована мерная трубка для визуального контроля уровня масла в нем, заправочная горловина. Для отвода паров масла наружу блок-контейнера предусмотрена вентиляция картера дизеля с конденсатосборником, расположенным внутри помещения блок-контейнера. Конденсатосборник расположен ниже уровня вентиляционного отверстия в картере двигателя. Для отвода воздуха и паров масла наружу контейнера предусмотрена вентиляция масляного бака.

Система охлаждения включает в себя штатные радиаторы на ДГУ Cummins, термостаты, подогреватели ОЖ.

Система выпуска отработавших газов состоит из компенсаторов теплового расширения, промышленных глушителей (уровень демпфирования шума 15 дБА), с сильфоном и искрогасителем.

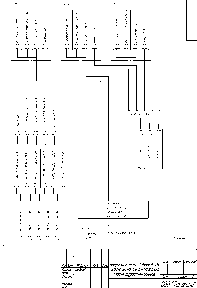
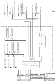
Система управления ДГУ обеспечивает автоматическое поддержание электростанции в состоянии "готовности к принятию нагрузки", длительную параллельную работу с внешней сетью с заданным уровнем мощности ДГУ в диапазоне 30-100% номинальной мощности (задание мощности в ручном режиме). Система ведет учет дизельного топлива и расхода электроэнергии, а данные о мгновенном и среднем расходе топлива представлены в виде значений регистров Modbus. Система предоставляет оперативные и исторические данные для анализа на панели оператора в модуле управления:

  • объем и температура топлива в емкостях каждой ДГУ;
  • скорость расхода топлива (для определения утечек);
  • уровень вырабатываемой мощности каждой ДГУ;
  • суммарный уровень мощности на Объекте;
  • состояние ДГУ (активность, температурный режим, нагрузка).

Степень автоматизации энергокомплекса по ГОСТ 33105-2014 – третья. Предусмотрена параллельная работа с однотипными станциями, длительная - с уравнительными связями. Распределение нагрузки между электроагрегатами – автоматическое. Функции автоматического управления системами ДЭС:

  • предпусковой подогрев двигателя;

  • автоматическая система дозаправки топлива из внешней ёмкости;

  • подзарядка АКБ от сети 220 В от внешней сети;

  • автоматическое открытие / закрытие клапанов притока и оттока воздуха с электроприводом.

  • параметры генератора: напряжение между фазами, между каждой фазой и нейтралью, частота, сила тока по каждой фазе;  суммарная активная мощность (кВт);  суммарная реактивная мощность (кВАр); коэффициент мощности по фазам (cos φ); - счетчик активной и реактивной электроэнергии, потребленной от генератора (кВт*ч, кВАр*ч); счетчик запусков / остановов ДГУ.

  • параметры двигателя: давление масла;  температура охлаждающей жидкости; скорость вращения коленчатого вала; напряжение стартерной батареи;  уровень топлива в расходном баке, в %;  встроенный счетчик потребленного топлива;  счетчик наработки моточасов;  счетчик мгновенного расхода топлива.

  • обеспечение функций защиты генератора: при низком / высоком напряжении;  при низкой / высокой частоте тока; при перегрузке генератора по току;  при перегрузке генератора по мощности;  при перекосе напряжений и токов по фазам;  при некорректном чередовании фаз; - при коротком замыкании;  от перехода генератора в двигательный режим;  при потере возбуждения генератора;  отдельная кнопка экстренного останова ДГУ.

  • обеспечение функций защиты двигателя:  при низком давлении масла;  при низком уровне охлаждающей жидкости;  при низкой / высокой температуре ОЖ;  при низкой / высокой скорости вращения;  при низком уровне топлива в расходном баке;  при низком / высоком напряжении стартерной аккумуляторной батареи (АКБ).

Энергокомплекс 3 МВт из ДГУ Cummins с трансформаторами для буровой установки
 

Техническая спецификация и конструкция контейнеров для ДГУ и модуля управления.

Исполнение - стационарное в контейнере «Север». Корпус контейнера антивандальный, герметичный, в термо-шумозащитном исполнении. Степень огнестойкости «II» по СниП 21-01-97. Степень сейсмостойкости  9 баллов по  шкале MSK-64. Контейнер - теплоизолированное электропомещение, внутри которого смонтировано все оборудование, включая инженерные системы (освещение, отопление, вентиляция, розеточная сеть). Степень защиты - IP54, 2 степень огнестойкости. В корпус блок-контейнера встроены входная дверь, проемы воздушных клапанов, жалюзийная решетка, фундаменты (сани) и опорные конструкции для установки и крепления оборудования, проемы ввода/вывода силовых и контрольных кабелей, проемы прохода трубопроводов тепломеханических систем электростанции. В торце блок-контейнера выполнен распашной монтажный проем (открывающаяся створка) для монтажа (демонтажа) ДГУ и прочего оборудования. Сделаны сварной металлокаркас, антикоррозионное покрытие.

С внешней стороны стены использован  стальной лист, стойкий к возникновению коррозии, толщиной 2 мм. С внутренней стороны стены используется профилированный стальной лист 0,5мм, окрашенный полимерным покрытием. Толщина негорючего теплоизоляционного слоя - менее 100 мм. Конструкция стен, пола и потолка предусматривает теплоизоляцию, пароизоляцию и исключает сквозное промерзание.

Все электрооборудование обеспечивает надежную, безаварийную работу при установившемся значении напряжения от 0,85UHOM ДО 1U ном И при кратковременных (до 1 сек.) колебаниях напряжения от 0,7UHOM ДО 1,2 UHOM.

Система АВР предусматривает защиту (блокировку) от встречного включения при питании электрооборудования ДГУ от внешнего источника. При питании от внешнего источника обеспечена работа всего вспомогательного электрооборудования. При ДГУ без питания от внешнего источника все электрооборудование питается от ДГУ.

Освещенность составляет согласно СП 52.13330.2011 не менее 200 лк на местах управления и обслуживания. Система состоит из рабочего освещения  220В,  аварийного освещения 24В (с применением светильников универсальных со светодиодными лампами с цоколем E27),наружное освещение, ремонтное освещение. Светильники надежно закреплены, и их конструкция позволяет транспортировать ДЭС без их демонтажа.

Включение и отключение светильников рабочего освещения осуществляется в автоматическом и ручном режимах с выключателей, установленных у дверей внутри блок-контейнера. При автоматической работе освещения внутреннее освещение включается в случае присутствия людей в помещении; наружное освещение включается при наступлении темноты. Питание рабочего освещения - через автоматические выключатели дифференциальные с уставкой тока утечки 30 мА.

Аварийное освещение осуществляется светильниками с автономным источником питания. Подзарядка автономных источников питания - через автоматические выключатели дифференциальные с уставкой тока утечки 30 мА. Аварийные светильники установлены внутри блок-контейнера над каждой входной дверью. Аварийное освещение автоматически включается при исчезновении напряжения 230В в сети рабочего освещения.

Система пожарной безопасности включает в себя:

1) автоматическую установку охранно-пожарной сигнализации (АУПС);

2) автоматическую установку аэрозольного пожаротушения;

3) автоматические и ручные пожарные извещатели;

4) сигнальные приборы системы оповещения людей о пожаре и управления эвакуацией, работе системы пожаротушения;

5) комплект первичных средств пожаротушения (огнетушители углекислотные ОУ-5 - 2шт.).

Электропитание приборов пожарной безопасности предусмотрено от отдельных автоматических выключателей, резервное электропитание - от собственных аккумуляторных батарей.

При сигнале «Пожар» происходит автоматическое отключение электропитания ДЭС.

Система вентиляции - приточная, с механическим побуждением, обеспечивает автоматическое поддержание заданной температуры в блок-контейнере на время проведения ремонтных ремонт. При пожаре происходит автоматическое отключение системы вентиляции.  Система обеспечивает автоматическое поддержание температуры внутри контейнера в диапазоне от +15°С до +40°С.

Воздушные клапаны забора воздуха  - с электрическим и механическим приводом, оборудованные встроенным подогревом против примерзания. Проемы воздушных приточных клапанов оборудованы защитными створками, которые предотвращают повреждение клапанов во время транспортировки и хранения, и обеспечивают защиту от попадания внутрь помещений электростанции дождя и снега во время работы. Вентиляционные проемы        оборудованы жалюзийными защитными решетками.

Энергокомплекс 3 МВт из ДГУ Cummins с трансформаторами для буровой установки

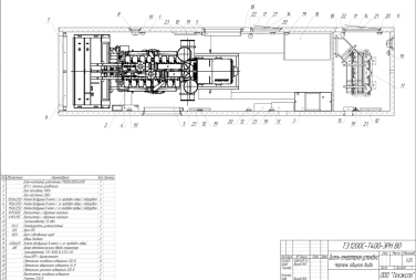
Модуль управления с ЗРУ необходим для дистанционного останова, запуска ДГУ, управления энергокомплесом, распределения и коммутации электроэнергии от ДГУ к БУ. Блок-контейнер модуля управления разделен перегородкой на два помещения: помещение РУ-6,3 кВ и помещение оператора.

В помещении РУ-6,3 установлены высоковольтное распределительное устройство, шкаф оперативного питания,  щит собственных нужд (ЩСН) .

В помещении оператора установлено распределительное устройство напряжением 0,4 кВ (РУ-0,4), центральный пульт управления (ЦПУ), компьютер для мониторинга и управления (ноутбук с установленной программой мониторинга). Связь с бурильщиком (телефон).

ЦПУ обеспечивает:

- пуск/останов дизельного электроагрегата с автоматическим включением/отключением генераторного выключателя;

- экстренный останов дизельного электроагрегата;

- отображение параметров работы электростанции и сигнализации о неисправностях.

- микропроцессорная система управления ДГУ интегрирована в АСУ буровой установки.

Напряжение РУ ВН - 6,3 кВ, количество высоковольтных выключателей - по 1 шт. на каждую ДГУ + 1 шт. резервная в соответствии с мощностью ДГУ.


Закажите расчет бюджета аналогичного проекта - напишите нам запрос на


Направим на ваш объект инженера для бесплатного предпроектного осмотра, подберем оборудование, составим смету

Следующий проект

Форма заявки

Дизельные электростанции:
Бюджетные:
Оптимальные по качеству и цене:
Премиальные: