Электронная почта:

Запрос в мессенджер:

Тел. и время работы:
+7 (812) 207-52-94
Пн-Вс 7:00 - 20:00
Заказ оборудования по телефону:
8 (800) 511-59-77
Выбранный город:
Санкт-Петербург
Митрофаньевское шоссе, 8А, Лит. Б
  • Надежные бренды и подтвержденные стандарты качества:
Заказ оборудования по телефону: 8 (800) 511-59-77

ДГУ Cummins 640 кВт для погрузочного крана в Мурманске

Общая мощность 640 кВт
Заказчик ЗАО «СММ»
Фото
Решение В 2022 году компания «Техэкспо» поставила в Мурманск дизель-генераторную установку в контейнере мощностью 640 кВт для питания самоходного портового крана.

Дизель-генераторная установка Green Power GP880 является основным источником электроэнергии.

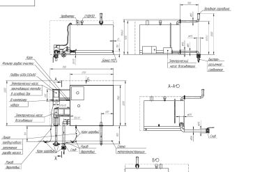
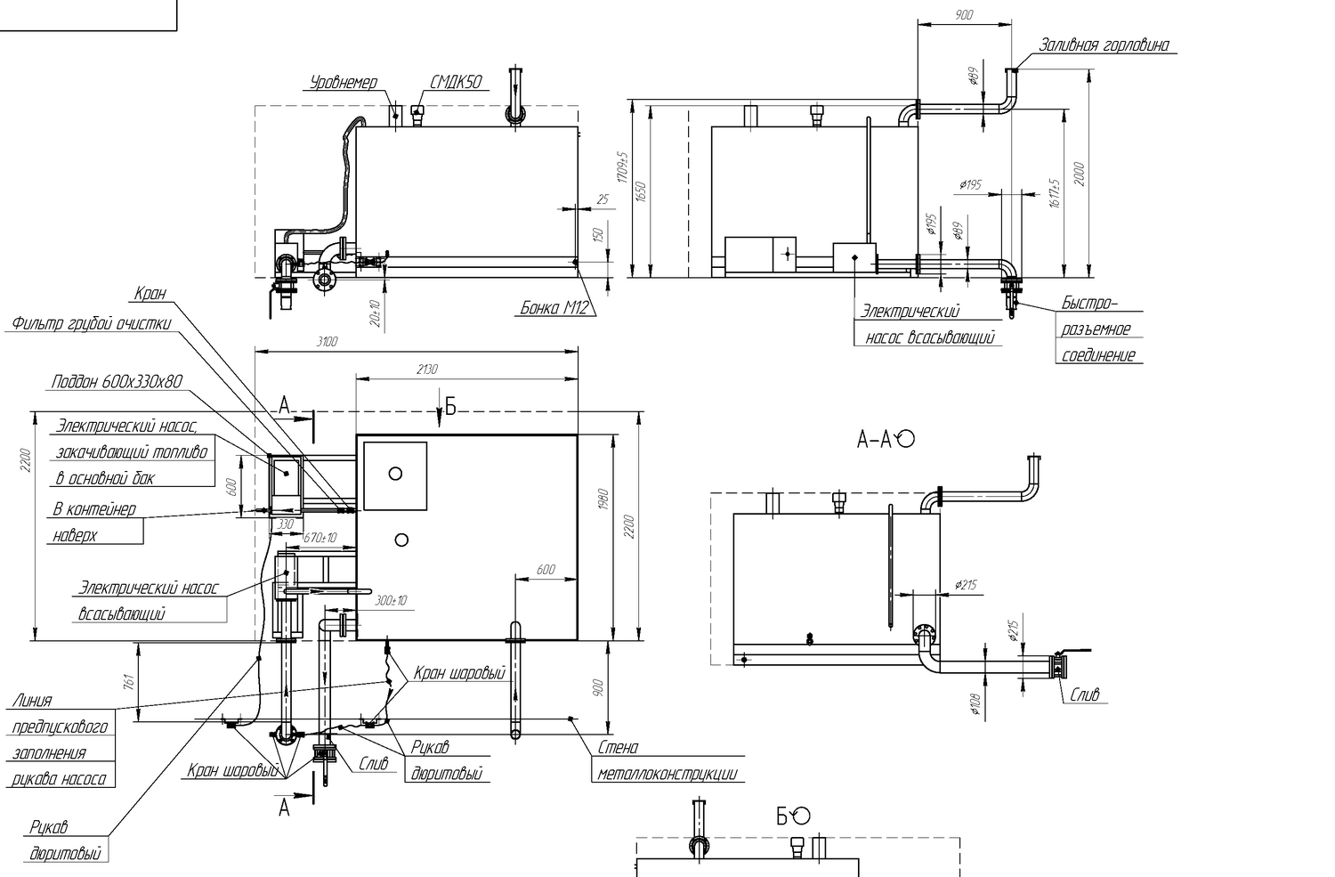
ДГУ в контейнере устанавливается непосредственно на конструкцию портового крана. Для обеспечения длительной работы электростанции компания «Техэкспо» изготовила дополнительный топливный резервуар объемом 5000 л., который устанавливается внутри металлоконструкции крана. Из этого резервуара основной топливный бак ДГУ будет пополняться автоматически.

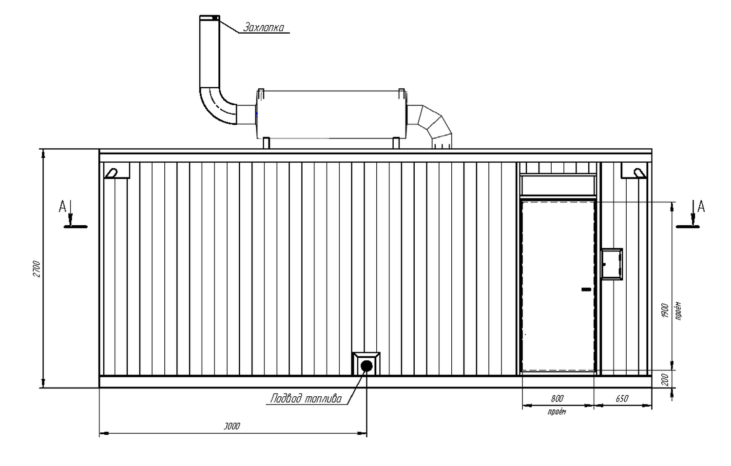
Дизель-генераторная установка в контейнере Green Power GP880 (Италия):

  • Мощность 640 кВт
  • Дизельный двигатель Cummins QSK23G3
  • Генератор Marelli MJB 400 MA4
  • Встроенный топливный бак 900 л.
  • Контейнер: цельносварной антивандальный, типа «Север»
  • Теплоизоляция: Утеплитель контейнера 100 мм. Контейнер рассчитан на работу в диапазоне температур окружающего воздуха от -40 до +50°С
  • Габариты контейнера: 6000х2400х2700 мм. (ДхШхВ)
  • Промышленный глушитель
  • Система отопления и вентиляции
  • Основное и аварийное освещение
  • Щит собственных нужд (ЩСН)
  • Шкаф управления перекачкой дизельного топлива

  • Автоматическая система сигнализации и аэрозольного пожаротушения

Дополнительный резервуар для топлива:

  • Объем 5000 л.
  • Габариты: 3100х2130х1980 мм.
  • Заливная горловина
  • Электрический всасывающий насос
  • Электрический насос, закачивающий топливо в основной бак
  • Фильтр грубой очистки
  • Система слива топлива
  • Изнутри бака нанесена фосфотриующая грунтовка ВЛ-023, которая защищает от образования коррозии

Закажите расчет бюджета аналогичного проекта - напишите нам запрос на

Направим на ваш объект инженера для бесплатного предпроектного осмотра, подберем оборудование, составим смету

Следующий проект

Форма заявки

Дизельные электростанции:
Бюджетные:
Оптимальные по качеству и цене:
Премиальные: