Электронная почта:

Запрос в мессенджер:

Тел. и время работы:
+7 (812) 207-52-94
Пн-Вс 7:00 - 20:00
Заказ оборудования по телефону:
8 (800) 511-59-77
Выбранный город:
Санкт-Петербург
Митрофаньевское шоссе, 8А, Лит. Б
  • Надежные бренды и подтвержденные стандарты качества:
Заказ оборудования по телефону: 8 (800) 511-59-77

Производство трех контейнеров для насосной установки «Белоруснефти»

Заказчик Производственное объединение «Белоруснефть»
Фото
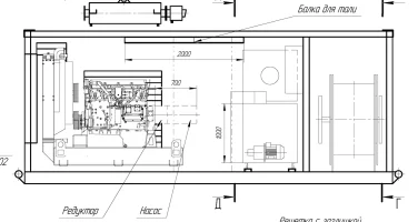
Решение В феврале 2022 г. ООО «Техэкспо» изготовило для белорусской государственной нефтехимической компании «Белоруснефть» три цельносварных контейнера длиной 6,5 м, выполненных в виде металлического модуля из стали 09Г2С (каркас). Контейнеры установлены на санное основание (салазки), с возможностью транспортировки тросом.

Корпус контейнеров состоит из двух отсеков — утепленного и неутепленного.

Один контейнер изготовлен с фирменной символикой.

  • Утепленный отсек служит для размещения оборудования: дизельный агрегат САТ С13, механизм отбора мощности, шкаф силовой, шкаф управления, шкаф собственных нужд, шкаф пожарной сигнализации, пульт управления, гидробак, вентиляционная вытяжка, решетка для охлаждения радиатора, конвектор электрический для обогрева. Толщина теплоизоляционного материала 100 мм. На крыше внутри контейнера установлена балка для ручной цепной тали (грузоподъемность не менее 0,5 т и не более 1 т.), которая позволит монтировать/демонтировать редуктор и насосы с дизельного агрегата и выносить/вносить их через входную дверь.
  • В неутепленном отсеке располагается барабан рукава высокого давления (для насоса).

Для заправки дизельным топливом снаружи контейнера предусмотрена топливная горловина с защитной крышкой. Внутри обоих отсеков монтируется освещение и пожарная сигнализация.


Закажите расчет бюджета аналогичного проекта - напишите нам запрос на

Направим на ваш объект инженера для бесплатного предпроектного осмотра, подберем оборудование, составим смету

Следующий проект

Форма заявки

Дизельные электростанции:
Бюджетные:
Оптимальные по качеству и цене:
Премиальные: