Выбранный город:
Санкт-Петербург
Митрофаньевское шоссе, 8А, Лит. Б
Тел. и время работы:
+7 (812) 207-52-94
Пн-Вс 7:00 - 20:00
Электронная почта:

Запрос в мессенджер:

Заказ оборудования по телефону:
8 (800) 511-59-77
  • Санкт-Петербург
  • Митрофаньевское шоссе, 8А, Лит. Б
  • +7 (812) 207-52-94
  • Екатеринбург
  • Антона Валека ул., д. 13
  • +7 343 302-00-42
  • Нижний Новгород
  • Максима Горького, д. 260
  • +7 831 288-54-50
  • Ростов-на-Дону
  • Максима Горького ул., д. 295
  • +7 863 309-21-51
Заказ оборудования по телефону: 8 (800) 511-59-77

Комплектные трансформаторные подстанции в контейнерах

Комплектные трансформаторные подстанции наружной установки (КТП НУ) предназначены для приема, преобразования и распределения электрической энергии трехфазного переменного тока частотой 50 ГЦ напряжением до 10 кВ. Применяются в системах электроснабжения жилищно-коммунальных объектов, промышленных предприятий и на нефтегазовых месторождениях. Силовой трансформатор преобразует трехфазный ток от высоковольтных ЛЭП 6,3 или 10,5 кВ в ток напряжением 380 Вольт для потребителей.

Комплектные трансформаторные подстанции наружной установки (мощность до 2500 кВА) делают в контейнерах (блочно-модульные здания) из высокопрочного металла. Вентиляция - через специально предназначенные окна с регулируемыми жалюзи. Двери отсеков КТП выполнены в «антивандальном» исполнении. Для защиты от дождя над входом возможно изготовление съёмного козырька. Опционально – исполнение с утеплением. Цены на КТП>>>

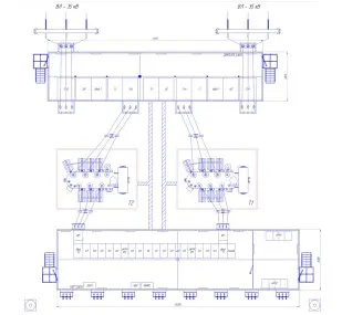
Блочно-контейнерная трансформаторная подстанция мощностью 2500кВА:
1 БКТП 6/0,4 кВ 2х2500 кВА
1.1 Блочно-модульное здание – цельносварной контейнер – двери, ворота, внутренний контур заземления, естественной вентиляцией, рабочее и аварийное освещение, радиаторы отопления, лестницы – 2 комплекта, 12000х2500х3100мм (ДхШхВ)
1.2 ТМГ21-2500/6/0.4 У3 Y/Yn-11 – 2 шт.
1.3 Высоковольтные ячейки типа КСО (РВЗ-6/630-II(III)) – 2 комплекта.
1.4 Количество и характеристики коммутационных аппаратов, трансформаторов тока согласнооднолинейной схемы и опросных листов. Производитель КЭАЗ, материал шин – медь.
• Вводной автоматический выключатель - OptiMat A-4000-S4-3P-100-D-MR7.0-BH-C2200-M2-P01-S1-03 – 2 шт.
• Секционный автоматический выключатель - OptiMat A-3200-S4-3P-100-D-MR7.0-BH-C2200-M0-P03-S1-03 – 1 шт.
• Автоматические выключатели ОЛ - OptiMat D630N-MR1-У3 – 8 шт.
• АВР на базе OptiSave H-243-У3
1.5 ЩСН – 1 шт., ШОС – 1 шт., кабельные и шинные соединения.
Итого, руб., в т.ч. НДС 15 814 000,00


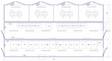
В конструкцию КТП входят:

  • Один или два силовых трансформатора.
  • РУВН (устройство распределения высшего напряжения) обеспечивает прием высокого напряжения и дальнейшее его распределение. Предохранители обеспечивают защиту работы трансформаторов и оборудования. Автоматические выключатели служат для отключения нагрузки при аварийной ситуации. В РУВН входит комплект низковольтных устройств, которые принимают и распределяют переменный ток напряжением 0,4 кВ.
  • РУНН (устройство распределения низшего напряжения) - защитные автоматические выключатели ввода и распределения, силовые рубильники, трансформаторы тока, система обогрева помещения подстанции, устройство защиты и подключения резерва. 

По способу обслуживания КТП могут быть с коридором или без него - тупиковые (КТПТ) и проходные (КТПП). На КТП могут применяться масляные и сухие силовые трансформаторы. Если электроустановки масляные, то используется более сложная изоляция, а в полу находятся отсеки для аварийного сброса масла.

Электроустановки с одним трансформатором используются чаще, а КТП с двумя трансформаторами - при большом количестве электропотребителей 1 и 2 категорий. На промышленных предприятиях выбирают трансформаторы 630, 1000 или 1600 кВА, а в микрорайонах городов — 400, 630 кВА.

Проекты контейнеров для КТП блочно-модульного типа:

Требуются КТП и срок поставки - пишите запрос на

Документы по ТКП:

СТАНДАРТ ОРГАНИЗАЦИИ ПАО «РОССЕТИ», СТО 34.01-3.1-001-2016. КОМПЛЕКТНЫЕ ТРАНСФОРМАТОРНЫЕ ПОДСТАНЦИИ 6-20/0,4 кВ. Общие технические требования.

СТАНДАРТ ОРГАНИЗАЦИИ ОАО «ФСК ЕЭС». СТО 56947007-29.240.25.161-2014. Комплектные трансформаторные подстанции блочные. Типовые технические требования

Типовые проекты трансформаторных подстанций 35/6 кВ с двумя силовыми трансформаторами мощностью:

   

ГОСТ 14695-80 (СТ СЭВ 1127-78) Подстанции трансформаторные комплектные мощностью от 25 до 2500 кВ·А на напряжение до 10 кВ. Общие технические условия

Классификация исполнений КТП:


Признаки классификации КТП


Исполнение

1. По типу силового трансформатора

С масляным трансформатором; с герметичным масляным трансформатором; с герметичным трансформатором с негорючим жидким диэлектриком; с сухим трансформатором; с трансформатором с литой изоляцией

2. По способу выполнения нейтрали трансформатора на стороне низшего напряжения (стороне НН)

С глухозаземленной нейтралью; с изолированной нейтралью

3. По взаимному расположению изделий

Однорядное; двухрядное

4. По числу применяемых силовых трансформаторов

С одним трансформатором; с двумя или более трансформаторами

5. Наличие изоляции шин в распределительном устройстве со стороны НН (РУНН)

С неизолированными шинами; с изолированными шинами (КТП мощностью 1000 кВ·А и выше)

6. По выполнению высоковольтного ввода

Кабельный, шинный, воздушный

7. По выполнению выводов (шинами и кабелями) в РУНН

Вывод вверх; вывод вниз; вывод вверх и вниз

8. По климатическим исполнениям и месту размещения

Категории 1, 3 исполнения У; категория 1, исполнения ХЛ и в сочетании категорий (смешанная установка):

1 - для устройства со стороны высшего напряжения (УВН), шинопровода и силового трансформатора; 3 исполнения У для РУНН

9. По виду оболочек и степени защиты

По ГОСТ 14254-80

10. По способу установки автоматических выключателей

С выдвижными выключателями; со стационарными выключателями

11. По назначению шкафов РУНН

Вводные, линейные, секционные

12. По наличию коридора (тамбура) обслуживания в УВН и РУНН категории 1

Без коридора (тамбура) обслуживания;
с коридором (тамбуром) обслуживания

Основные параметры КТП:


Наименование параметра


Значение параметра


1. Мощность силового трансформатора, кВ·А


25; 40; 63; 100; 160; 250; 400; 630; 1000; 1600; 2500

2. Номинальное напряжение на стороне высшего напряжения (стороне ВН), кВ

6; 10

3. Наибольшее рабочее напряжение на стороне ВН, кВ

7, 2; 12

4. Номинальное напряжение на стороне НН, кВ

0,23; 0,4; 0,69

5. Ток термической стойкости в течение 1 с на стороне ВН, кА

6,3; 8; 10; 12,5; 16; 20; 25; 31,5

6. Ток электродинамической стойкости на стороне ВН, кА

12,5; 16; 21; 26; 32; 41; 51; 64; 81

7. Уровень изоляции

с масляным трансформатором

Нормальная изоляция

с сухим трансформатором и с негорючим жидким диэлектриком

Облегченная изоляция



Дизельные электростанции:
Бюджетные:
Оптимальные по качеству и цене:
Премиальные: