Электронная почта:

Запрос в мессенджер:

Тел. и время работы:
+7 (812) 207-52-94
Пн-Вс 7:00 - 20:00
Заказ оборудования по телефону:
8 (800) 511-59-77
Выбранный город:
Санкт-Петербург
Митрофаньевское шоссе, 8А, Лит. Б
  • Надежные бренды и подтвержденные стандарты качества:
Заказ оборудования по телефону: 8 (800) 511-59-77

Техническое перевооружение ДЭС , в части замены ДГ-72 на ТЭ.1000

Инструкция по модернизации системы энергоснабжения ДЭС 1-6 МВт


Модернизация системы энергоснабжения ДЭС с изношенным устаревшим высоковольтным оборудованием на примере технического перевооружения Мезенской ДЭС в г. Мезень Архангельской области включает в себя замену дизель-генератора ДГ-72М, монтаж новой системы газовыхлопа,  установку выносного электрорадиатора, монтаж вспомогательного оборудования для подключения новых дизель-генераторов в энергетический комплекс ДЭС.

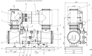
Дизель-генераторы типа ДГ-72М – это высоковольтный дизельэлектрический агрегат 1989 года выпуска, тип 6ЧН1А 36/45, мощность 882,3 кВт. Напряжение генератора 6300 В. Габариты ДЭА открытого исполнения, 6360х1960х3390 мм. Вес, 33 100 кг. Три дизель-генератора работают в параллели и служат основным и резервным источником электроэнергии для населенного пункта Мезень.

Нужна замена старой ДГУ?

Нужно заменить старую ДГУ или провести перевооружение ДЭС?
Инженер уточнит мощность, состояние оборудования, ограничения машинного зала и подскажет возможный порядок работ.

Технологическая последовательность основных СМР при замене ДГУ:

  • демонтаж двух участков стены с окнами до перемычек;
  • демонтаж существующих ДГУ ДГ-2 и ДГ-5 типа Г-72М;
  • устройство отверстия в стене для системы выхлопа ДГ-5;
  • монтаж блока утилизации тепла ДГ-5;
  • переустройство выхлопной трубы ДГ-5 с учетом размещения блока утилизации ДГ-5;
  • монтаж проектируемых ДГУ;
  • восстановление участков стен с оконными проемами;
  • разработка котлованов и устройство фундаментов охлаждающих блоков ДГУ;
  • монтаж конструкций охлаждающих блоков ДГУ;
  • монтаж коммуникаций для подключения ДГУ;
  • благоустройство территории.



Для вывода из эксплуатации и демонтажа двух ДГ-72М предусмотрена схема поэлементной разборки ДГУ, а также демонтаж и последующее восстановление участка стены здания ДЭС. Через образованный проём в фасаде здания с помощью автокранов перемещается многотонное оборудование ДГУ.

Демонтаж части кирпичной стены с оконным проемом

Разборка части кирпичной стены с оконными проемами необходима для возможности демонтажа и погрузки элементов ДГУ на автокран с последующим вывозом для утилизации. После завершения всех монтажных работ стена и оконные проемы будут восстановлен. Демонтаж части стены высотой 3450 мм от верха фундамента до низа перемычки здания ДЭС и шириной 3590 мм начинается с демонтажа окон – удаления стекол из рамы, снятия створки, демонтажа наличников и рамы. При демонтаже кирпичных стен определяется размер и вес выбиваемой части, работы производятся кувалдой или перфоратором от потолка к полу.

Отходы строительного производства вывозятся на действующую свалку, внесённую в ГРОРО. Вывоз отходов предусмотрен автотранспортом на полигон с передачей по договору специализированной организации, имеющей лицензию на утилизацию отходов. 

Демонтаж существующих ДГУ ДГ-2 и ДГ-5 типа Г-72М

Перед непосредственным демонтажем ДГУ типа Г-72М производятся работы по выводу оборудования из эксплуатации. Для этого необходимо слить масло, охлаждающую жидкость, топливо из дизель-генератора, отсоединить внешние коммуникации дизель-генератора (выхлопная система, топливная система, система охлаждения, электрические кабели и т.д.), снять оборудование, которое может помешать демонтажу, снять крепление рамы дизель-генератора.

  • Дизель-генератор Г-72М - габариты 6360х1960х3390 мм. Вес, 33 100 кг.

Демонтаж ДГУ производится поэлементно. Вес рамы ДГУ составляет 6,7 т, блока - 5 т, коленчатого вала - 3,8 т. С помощью внутрицеховых мостовых кранов 5 т и 3 т демонтируемые элементы поднимаются и устанавливаются перед разобранным проемом на подставки, далее оборудование грузят на бортовой автотранспорт автокраном грузоподъемностью 25 тонн.

Для защиты настила от продавливания предусмотрена укладка бруса 6000х150х150 и стального листа 4х3000х150 с опиранием на существующий фундамент и фундамент стены при перестроповке.

Демонтаж трубопроводов и стоек крепления газохода, масляного бака и трубопроводов из приямка производится поэлементно без разборки. Демонтаж котла-утилизатора производится без разборки с отсоединением фланцев газоходов. Бетонная подливка под существующие ДГУ также демонтируется.

Демонтируемое оборудование вывозится автотранспортом в г. Архангельск с целью дальнейшей утилизации в пункты приема металла. Частично демонтируемое оборудование кладируется на базе металлолома Мезенской ДЭС с целью повторного использования (при необходимости).

Получите консультацию по техническому перевооружению ДЭС

Игорь Ишин
Игорь Ишин
Главный инженер проектов
  • Оценим возможность замены старой ДГУ на современную установку
  • Уточним ограничения по помещению, проемам, вентиляции и подключению
  • Подскажем, какие данные нужны для предварительной оценки работ

Монтаж и подключение новой ДГУ

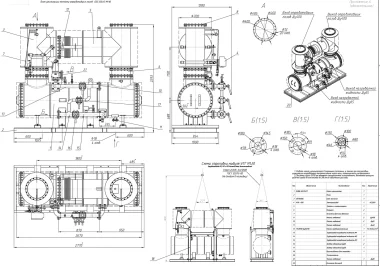
Две ДГУ ТЭ.1000 монтируются на подготовленный фундамент и крепятся с помощью анкерных болтов. Для этого на существующий фундамент устанавливается сетка платов с привариванием к заглубленным анкерным болтам с последующим фрезерованием совместно с фундаментной подушкой для выравнивания поверхности.

Новые ДГУ загружаются в помещение с помощью кранового оборудования, затем ДГУ устанавливаются на специальные тележки и перемещается на место монтажа. После выверки и закрепления оборудования на фундаменте производят подливку под оборудование, заполняя бетонной смесью зазор между его опорной частью и фундаментом.

Выполнен монтаж трубопроводов системы топливоподачи с запорной арматурой для подключения к существующему топливопроводу.

ДГУ ТЭ.1000 открытого исполнения на раме:

  • Дизельный двигатель Mitsubishi S12R -PTA
  • Генератор тока Marelli напряжением 6.3 кВ
  • Мощность ДГУ 1040 кВт

Есть ограничения по заносу и размещению ДГУ?
Обсудить занос и монтаж ДГУ?
Оставьте заявку - специалист уточнит габариты помещения, маршрут заноса, схему подключения и требования к монтажу.

Для подключения новых ДГУ проложены силовые кабельные линии 6 кВ по строительным конструкциям кабеленесущей системы, установлены кабельные муфты 6 кВ, проложены кабели 0.4 кВ цепей собственных нужд, цепей РЗА ДГУ, цепей управления ДГУ, цепей телемеханики ДГУ. Монтаж кабеленесущей системы выполнен, в том числе с устройством каналов в бетонном фундаменте по размеру лотка. При установке ДГУ подведено заземление к ДГУ, выносной панели управления, к топливным бакам и топливным магистралям, кабельным каналам и их перекрытиям.

Выполнен монтаж вспомогательного оборудования для подключения новых дизель-генераторов в энергетический комплекс ДЭС:

  • Монтаж щита собственных нужд ДГУ
  • Монтаж панели управления СУТ ДГУ
  • Монтаж щита системы охлаждения ДГУ
  • Монтаж дистанционного пульта ДГУ
  • Монтаж трехполюсных автоматических выключателей 125 А в существующем ЩСН
  • Монтаж трансформаторов тока 6 кВ в существующие панели КРУН-6 кВ
  • Монтаж трансформаторов тока нулевой последовательности в существующие панели КРУН-6 кВ
  • Монтаж статических токовых реле в существующие панели РЗА КРУН-6 кВ
  • Монтаж промежуточных реле в существующие панели РЗА КРУН-6 кВ
  • Монтаж трехполюсных автоматических выключателей 1А в существующие панели РЗА КРУН-6 кВ
  • Монтаж многофункциональных измерительных устройств ЭНИП-2-45/100-220-A2Е4х2-21 в существующие панели РЗА КРУН-6 кВ
  • Установка стойки с аккумуляторной батареей (0,2 т)

В рамках ПНР по программе индивидуальных испытаний с помощью электротехнической лаборатории провели испытания синхронного генератора и силового кабеля, измерили сопротивление заземляющего устройства, проверили устройства РЗА, наличие цепи между заземленными установками и элементами заземленной установки, срабатывание расцепителей автоматических выключателей, сопротивление петли фаза-нуль путём непосредственного замера тока однофазного короткого замыкания на корпус электрооборудования.

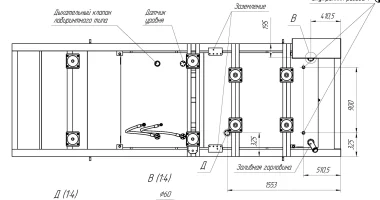
Монтаж выносной системы охлаждения и новой системы газовыхлопа

  • монтаж блока утилизации тепла ДГ и системы газовыхлопа;
  • переустройство выхлопной трубы ДГ с учетом размещения блока утилизации 
  • устройство фундаментов охлаждающих блоков ДГУ;
  • монтаж конструкций охлаждающих блоков ДГУ и выносного радиатора

Система охлаждения ДГУ - выносная. Два драйкулера (сухая градирня) монтируются на подготовленный фундамент с внешней стороны здания. Охлаждение ДГУ происходит за счет окружающей среды. Внутри помещения монтируется система трубовпроводов от ДГУ к радиатору.

Был подготовлен фундамент-основание для надежного крепления оборудования. На месте монтажа разработан грунт. В котлован в несколько слоев засыпан песок (толщина каждого слоя не менее 20 см). Подстилающий слой из песка утрамбован и выведен до необходимого уровня, он не подвержен пучению, усадке и сжатию. Далее был устроен подстилающий слой из щебня, который также был утрамбован специальным оборудованием – виброблитой. Каждый новый слой максимально ровный, нужной толщины. Это основа для надежности всей конструкции.

Монолитные работы по устройству фундамента производятся с помощью установки опалубки по всему периметру фундаментной плиты, монтажа стальной арматуры, установки поддерживающего арматурного каркаса и крепления, сваривая соединения дуговой сваркой. Следующий этап – бетонирование фундаментной плиты.

Опорные металлоконструкции монтируются при помощи сварки, крепление необходимых опор производится к закладным деталям, с установкой дюбелей и болтов для размещения оборудования, труб и других элементов инженерных сетей. Сварка производится к каждому кронштейну с трех сторон.

По месту в помещении были изготовлены: подставка под электронасос, опоры под трубопроводы. Через технологические отверстия в стене проложены коммуникации и трубопроводы к радиатору.

Установлены два выносных радиатора (драйкулера) Terma мощностью 813 кВт на шесть вентиляторов, и трубопроводы к нему. Для поддержания давления в циркуляции жидкости в системе отопления и охлаждения установлен электронасос Calpeda NM 65/16D/B 400/690/50 Hz.

Смонтирована система дозаправки/слива ОЖ, установлен шкаф управления и электрический подогреватель ОЖ.

Система удаления отработанных газов

Отвод отработанных газов двигателя осуществляется наружу через спроектированную выпускную систему, которая не создает излишнего противодавления на двигатель ДГУ.

Для трубопроводов системы газовыхлопа весом 1 т монтируются опорные конструкции.

Установленная газоотводная магистраль изолирована и защищена от попадания на ее поверхность капель ГСМ и любых других горючих предметов. Выход отводящей трубы защищен от попадания атмосферной влаги. Для системы выхлопа выполнен технологический проем в стене с учетом установки блока утилизации тепла и выполнено переустройство выхлопной трубы высотой 7800 мм диаметром 325 мм.

Основные составляющие системы по удалению отработанных газов:

  • каталитический нейтрализатор со встроенным глушителем
  • блок утилизации теплоты
  • выхлопной трубопровод
  • трубы без сварных швов
  • воронка удаления конденсата и дождевой воды

Блок утилизации теплоты предназначен для утилизации теплоты отработанных газов дизель-генераторной установки Mitsubishi S12R-PTA 1040кВт.

БУТ Б65.125А7 состоит из следующих основных элементов:

  • котла-утилизатора водогрейного интенсифицированного газотрубного КУВИ-65.125А7 с предохранительной арматурой, предназначенного для утилизации теплоты отработанных газов ДГУ;
  • трубопровода отработанных газов ДГУ Ду400, предназначенного для подвода/отвода отработанных газов ДГУ к котлу-утилизатору, а также для их байпасирования. В составе трубопроводов имеется блок поворотных газовых высокотемпературных заслонок ЗПГВ400Б с электроприводом вращения четвертьоборотным АОХ-020.

БУТ устанавливается в непосредственной близости от ДГУ и подключается к его системе газовыпуска. Главным элементом БУТ является котёл-утилизатор КУВИ-65.125А7. В нем осуществляется перенос теплоты от отработанных газов ДГУ к нагреваемой воде через трубчатую теплообменную поверхность.


Восстановление кирпичной стены

Перед кирпичной кладкой произведена геодезическую разбивка осей и разметку положения стен в соответствии с проектом, проверена уровнем горизонтальность основания под стену, выполнена разметка расположения оконных проемов.

Кладка стен выполняется каменщиками высокого уровня квалификации и точности. Правильность установки каменщик контролирует по отвесу и уровню. В оконные проемы производится монтаж окон. Ставят раму по уровню, закрепляют ее к стене, производят сборку окна. После монтажа выполняют герметизацию зазора вокруг конструкции монтажной пеной.


Подберите решение для замены или модернизации ДЭС

Игорь Ишин
Игорь Ишин
Главный инженер проектов
  • Уточним текущую конфигурацию электростанции и требуемую мощность
  • Поможем оценить демонтаж, монтаж, ПНР и адаптацию инженерных систем
  • Подготовим рекомендации для ТЗ и предварительного расчета
Дизельные электростанции:
Бюджетные:
Оптимальные по качеству и цене:
Премиальные: