

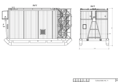
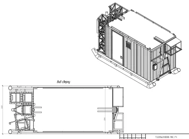
Контейнер связи — это комплексное решение для организации мобильного пункта, в котором размещается оборудование различного назначения. Такие контейнеры подходят в том числе и для эксплуатации в тяжелых климатических условиях.
Нет необходимости в капитальном здании, удобная транспортировка
Модульная схема обеспечивает высокую гибкость в вариантах наполнения станции.
Мы поставляем полностью готовый контейнер в согласованной комплектации.
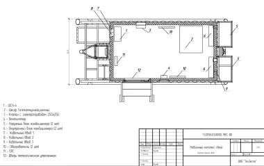
Обеспечен свободный доступ к оборудованию внутри контейнера.
Процессы администрирования всех систем максимально автоматизированы
Мы предоставляем гарантию 12 месяцев на всё оборудование.
Защищают от холода и осадков
— станции сотовой связи
— наземные станции спутниковой связи
— радиорелейные станции прямой связи
— автоматизированные промежуточные станции радиорелейной связи
— серверные для центров обработки данных (ЦОД)
— автоматические телефонные станции
— теле- радиопередающие станции
В контейнер устанавливаются: конвектор, вытяжной вентилятор, кондиционер, воздушные клапаны, освещение, электросчётчик, вводно-распределительный щит, заземление, охранно-пожарная сигнализация, автоматическая система пожаротушения, устройство электропитания светового ограждения мачт УЭСОМ (автоматическое подключение каждой из двух линий нагрузки к соответствующим вводам сети при наличии на них напряжения). Заградительные огни и светомаяки должны питаться по отдельным фидерам, подключенным к шинам распределительных устройств. Фидеры должны быть обеспечены резервным электроснабжением.
Телекоммуникационный контейнер включает в себя дизельную электростанцию (ДЭС) мощностью 16 кВт и ИБП мощностью 10 кВт.
Запросить коммерческое предложение