Электронная почта:

Запрос в мессенджер:

Тел. и время работы:
+7 (812) 207-52-94
Пн-Вс 7:00 - 20:00
Заказ оборудования по телефону:
8 (800) 511-59-77
Выбранный город:
Санкт-Петербург
Митрофаньевское шоссе, 8А, Лит. Б
  • Надежные бренды и подтвержденные стандарты качества:
Заказ оборудования по телефону: 8 (800) 511-59-77

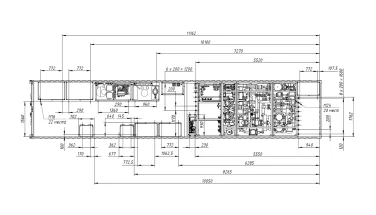
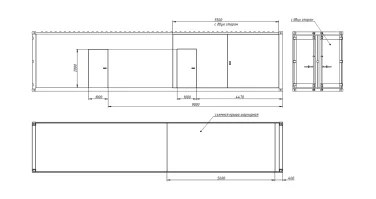
Контейнер для электролизной установки генерации водорода высокого давления

Заказчик ООО НПО «Центротех»
Решение В 2023 году на производстве ООО «Техэкспо» был изготовлен контейнер с системами управления, сигнализации и безопасности для размещения в нем опытного образца электролизной установки генерации водорода высокого давления производительностью 50 нм3/ч (ЭлУ-50).

Электролизная установка для производства водорода разработана специалистами ООО «НПО «Центротех» по заказу АО «Концерн Росэнергоатом» и не имеет аналогов в России. Это устройство промышленного назначения для генерации водорода на базе щелочных матричных электролизных элементов. В процессе электролиза производится водород, кислород.

Электролизные установки производительностью от 5 до 40 Нм3/ч используют атомные станции, где водород используется для охлаждения генераторов, предприятия атомной, пищевой, стекольной промышленности и других отраслей. Установка отличается компактными габаритами и представляет собой блочно-модульную конструкцию с установленным оборудованием.

контейнер для электролизной установки

Контейнер разделен на две секции и поставляется на место монтажа двумя частями. Каждая секция – отсек в котором размещено оборудование. Отсеки имеют раздельную классификацию по взрывопожаробезопасности и разделены между собой межотсековой перегородкой.

Отсеки контейнера имеют отдельные торцевые ворота и входы. На крыше отсека установлена сухая градирня (драйкулер) блока терморегуляции.

Составной контейнер из двух герметичных относительно друг друга отсеков оборудован системами:

  • системой освещения, состоящей из рабочего электроосвещения, аварийного электроосвещения, ремонтного освещения и наружного освещения входов;
  • системой контроля и сигнализации содержания водорода и кислорода в воздухе c противоаварийной защитой (ПАЗ);
  • системой механической, приточно-вытяжной вентиляции с датчиками контроля температуры;
  • системой отопления и кондиционирования с датчиками контроля температуры;
  • системой автоматической пожарной сигнализации c температурными датчиками и датчиками огня и дыма;
  • системой автоматического газового пожаротушения (самосрабатывающие модули газового пожаротушения с предупреждающей сигнализацией “ГАЗ, НЕ ВХОДИТЬ”).


Использованы фотографии: https://www.atomic-energy.ru/news/2023/05/29/135665

Закажите расчет бюджета аналогичного проекта - напишите нам запрос на

Направим на ваш объект инженера для бесплатного предпроектного осмотра, подберем оборудование, составим смету

Следующий проект

Форма заявки

Дизельные электростанции:
Бюджетные:
Оптимальные по качеству и цене:
Премиальные: