Электронная почта:

Запрос в мессенджер:

Тел. и время работы:
+7 (812) 207-52-94
Пн-Вс 7:00 - 20:00
Заказ оборудования по телефону:
8 (800) 511-59-77
Выбранный город:
Санкт-Петербург
Митрофаньевское шоссе, 8А, Лит. Б
  • Надежные бренды и подтвержденные стандарты качества:
Заказ оборудования по телефону: 8 (800) 511-59-77

Дизельная электростанция Техэкспо ТЭ.926С-Т400-2РН Baudouin (926 кВт)

  • Техэкспо ТЭ.926С-Т400-2РН Baudouin - ДЭС 926 кВт  за 50 037 740 рублей | Дизельная электростанция в Техэкспо
  • Техэкспо ТЭ.926С-Т400-2РН Baudouin - ДЭС 926 кВт  за 50 037 740 рублей | Дизельная электростанция в Техэкспо

Технические характеристики ТЭ.926С-Т400-2РН Baudouin

Двигатель Baudouin 12M33G1250/5e2

  • Объём двигателя, л39.2
  • СтранаКитай
  • Номинальная мощность
  • Максимальная мощность, кВт1108
  • Объём масляной системы, л146
  • Расположение цилиндровV-образное
  • Тип охлаждения двигателяжидкостная
  • Частота вращения, об/мин1500

Генератор переменного тока

Габариты ДЭС

  • Габариты, мм 5150x2200x2570

Прочее

  • Номинальная мощность 926
  • Двигатель Baudouin
spec_Baudouin-12M33-SpecSheet_1.pngspec_Baudouin-12M33-SpecSheet_2.png

Оставьте заявку на расчет цены проекта дизельного генератора 926 кВт

Наша команда поможет выбрать дизель-генератор
Наша команда

Наша команда поможет выбрать дизель-генератор, подготовить проектную документацию и осметить СМР

Константин Новиков
Руководитель отдела продаж
Максим Резенко
Руководитель направления продаж ДГУ
Борис Михайлов
Специалист отдела продаж
Игорь Ишин
Главный инженер проектов
Филипп Крекотень
Руководитель направления продаж сервисных услуг
Евгений Шеленков
Менеджер по продажам

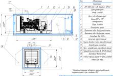
Чертежи ТЭ.926С-Т400-2РН Baudouin

Выберите дополнительно:
Контейнер цельносварной, с электрикой, ЩСН, отоплением, вентиляцией, пожарной и охранной сигнализацией
Контейнер цельносварной, с электрикой, ЩСН, отоплением, вентиляцией, пожарной и охранной сигнализацией
Опции для ДГУ: топливный бак до 10000 л с датчиками уровня, система автоподкачки топлива, дополнительный масляный бак 500 л
Опции для ДГУ: топливный бак до 10000 л с датчиками уровня, система автоподкачки топлива, дополнительный масляный бак 500 л
Высоковольтные ДГУ 6/10 кВ, КСО с вакуумным выключателем, повышающий трансформатор, модуль управления
Высоковольтные ДГУ 6/10 кВ, КСО с вакуумным выключателем, повышающий трансформатор, модуль управления
Шасси с осевой нагрузкой до 20 тонн
Шасси с осевой нагрузкой до 20 тонн
Шумозащитный кожух с критическим глушителем 55 дБ (А)
Шумозащитный кожух с критическим глушителем 55 дБ (А)
АСУ ТП с внедрением SCADA, удаленный мониторинг и управление ДГУ
АСУ ТП с внедрением SCADA, удаленный мониторинг и управление ДГУ
АВР и параллельная работа нескольких ДГУ
АВР и параллельная работа нескольких ДГУ
Интеграция ДГУ с комплектной трансформаторной подстанцией
Интеграция ДГУ с комплектной трансформаторной подстанцией
ИБП от 20 до 500 кВА: Online с АВР, ВРУ и ДГУ для потребителей I категории надежности
ИБП от 20 до 500 кВА: Online с АВР, ВРУ и ДГУ для потребителей I категории надежности
Проектирование и РД, техническая экспертиза, электролаборатория до 10 кВ
Проектирование и РД, техническая экспертиза, электролаборатория до 10 кВ
Строительно-монтажные работы, прокладка кабельной трассы, установка РУ, допуск от Ростехнадзора
Строительно-монтажные работы, прокладка кабельной трассы, установка РУ, допуск от Ростехнадзора

Аналогичные товары

  • Название модели
  • Двигатель
  • Мощность
  • Страна сборки
  • Цена

Группа мощности 16-40 кВт

Дизельные электростанции:
Бюджетные:
Оптимальные по качеству и цене:
Премиальные: