Поставка двух ДГУ по 400 кВт в контейнерах для строительства железной дороги
| Общая мощность |
800 кВт
|
| Заказчик |
Производственная компания |
| Фото |
|
| Задача |
Обеспечить компактный автономный источник питания для строящегося предприятия и доставить электроэнергию для нужд техники и персонала на объекте. |
| Решение |
Поставка дизель-генераторных установок малой мощности в антивандальных контейнерах, с доставкой на место эксплуатации. |
«Техэкспо» выступило в качестве подрядчика в рамках исполнения обязательств Заказчика по поставке автономных источников энергоснабжения на объект «Комплексное развитие Мурманского транспортного узла» — удаленные участки территории и прилегающей акватории на западном берегу Кольского залива.
На первом этапе строительства возводилась железнодорожная линия от ст. «Выходной», по мостовому переходу через р. Тулома, станцию «Мурмаши 2» и станцию «Лавна».
Общие характеристики поставленного оборудования
Для решения задач Заказчика была выбрана дизель-генераторная установка ТЭ.400С-Т400-2РН производства «Техэкспо» в количестве 2 единиц на базе двигателя Perkins в цельносварном контейнере типа «Север М».
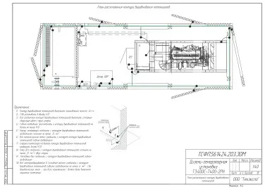
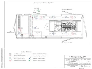
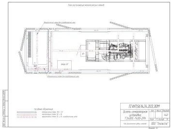
Чертеж общего вида
Технические характеристики Дизель-генераторной установки ТЭ.400С-Т400-2РН:
-
Основная мощность 400 кВт / 500 кВА
- Резервная мощность 440 кВт / 550 кВА
- Двигатель Perkins, 2506C-E15TAG2
- Частота вращения двигателя 1500 об/мин
- Генератор – Leroy Somer, LSA47.3M7
- Выходное напряжение генератора 400В
- Автоматическая панель управления Deep Sea DSE 7320.
Дизель-генераторные установки поставлены в утепленных контейнерах габаритами 7000х2400х2500 мм. Контейнеры оснащены основным (220В) и аварийным (24В) освещением, автоматическими системами сигнализации (ОПС) и порошкового пожаротушения, приточно-вытяжной вентиляцией с автоматическим приводом и системой отопления при помощи электроконвекторов (220В) с терморегуляторами.
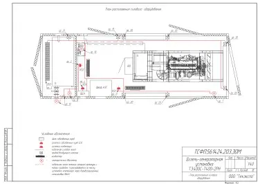
План расположения светового оборудования
ДГУ установлены на стальную сварную раму с виброопорами. Кроме того, ДГУ укомплектованы подогревателем охлаждающей жидкости от сети и стандартным радиатором системы охлаждения.
Схема окраски контейнера в цветовой гамме Заказчика
Оборудование также имеет систему смазки с фильтрацией, систему защиты по низкому давлению масла, систему защиты по низкому уровню охлаждающей жидкости, электронный регулятор частоты вращения, глушитель, защитные решётки на горячие части двигателя и выходной автомат защиты.
Всё оборудование прошло тестирование под нагрузкой от 0% до 110%.
Специалисты «Техэкспо» провели проверку работы ДГУ под реальной нагрузкой, предоставленной Заказчиком, в течение 1 часа для контроля параметров ДГУ. Обслуживающий персонал Заказчика прошел инструктаж по правилам эксплуатации ДЭС. На поставленное оборудование компания «Техэкспо» предоставила гарантию, срок которой составляет 12 месяцев.
Поставка двух ДГУ по 400 кВт в контейнерах для строительства железной дороги – фото 1 из 5
Поставка двух ДГУ по 400 кВт в контейнерах для строительства железной дороги – фото 2 из 5
Поставка двух ДГУ по 400 кВт в контейнерах для строительства железной дороги – фото 3 из 5
Поставка двух ДГУ по 400 кВт в контейнерах для строительства железной дороги – фото 4 из 5
Поставка двух ДГУ по 400 кВт в контейнерах для строительства железной дороги – фото 5 из 5
Поставка двух ДГУ по 400 кВт в контейнерах для строительства железной дороги – чертеж из проектной документации 1 из 8
Поставка двух ДГУ по 400 кВт в контейнерах для строительства железной дороги – чертеж из проектной документации 2 из 8
Поставка двух ДГУ по 400 кВт в контейнерах для строительства железной дороги – чертеж из проектной документации 3 из 8
Поставка двух ДГУ по 400 кВт в контейнерах для строительства железной дороги – чертеж из проектной документации 4 из 8
Поставка двух ДГУ по 400 кВт в контейнерах для строительства железной дороги – чертеж из проектной документации 5 из 8
Поставка двух ДГУ по 400 кВт в контейнерах для строительства железной дороги – чертеж из проектной документации 6 из 8
Поставка двух ДГУ по 400 кВт в контейнерах для строительства железной дороги – чертеж из проектной документации 7 из 8
Поставка двух ДГУ по 400 кВт в контейнерах для строительства железной дороги – чертеж из проектной документации 8 из 8
Направим на ваш объект инженера для бесплатного предпроектного осмотра, подберем оборудование, составим смету