Электронная почта:

Запрос в мессенджер:

Тел. и время работы:
+7 (812) 207-52-94
Пн-Вс 7:00 - 20:00
Заказ оборудования по телефону:
8 (800) 511-59-77
Выбранный город:
Санкт-Петербург
Митрофаньевское шоссе, 8А, Лит. Б
  • Надежные бренды и подтвержденные стандарты качества:
Заказ оборудования по телефону: 8 (800) 511-59-77

Два контейнера с тепловым модулем для газопоршневой установки

Заказчик ООО «Компания «БТС»
Решение Компания «Техэкспо» в апреле 2022 года изготовила два контейнера с системой утилизации тепла и рамным основанием под газопоршневую установку (ГПУ) компании-партнера ООО «БТС-Генераторс», которая занимается производством газопоршневых станций.

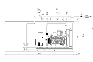
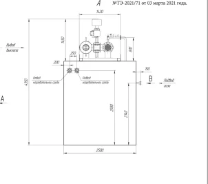
Два контейнера (габариты: 6500х2500х2900 мм.) изготовлены по второй степени огнестойкости.

Предоставленная Заказчиком газопоршневая установка на базе двигателя Doosan GV222ТI мощностью 350 кВт, была монтирована в контейнер на рамное основание. Рама изготовлена на собственном производстве «Техэкспо» по чертежам заказчика.

Два контейнера с системой утилизации тепла и рамным основанием под газопоршневую установку (ГПУ)

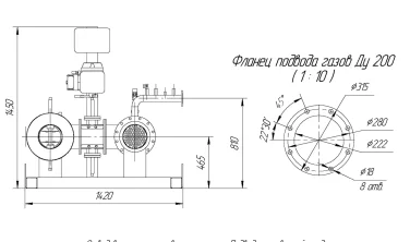
Вместе с ГПУ был установлен Тепловой модуль, который утилизирует тепло от электростанции и через сборный тепловой пункт выдает его потребителю. Расчетная тепловая мощность двигателя принята равной 300 кВт и делится между УТГ (выхлопные газы) и УТА (контур охлаждения двигателя).

 

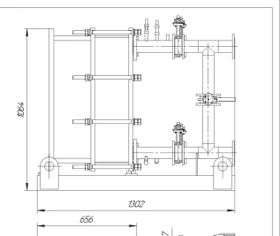
Тепловой модуль состоит из:

  • ТММ-ТМВВ (тепловой модуль водоводяной), включающий в свой состав УТА (утилизатор тепла антифриза);
  • ТММ-ТМВГ (тепловой модуль водогазовый), включающий в свой состав УТГ (утилизатор тепла выхлопных газов);
  • Рама ТМ;
  • Узел переключения потока выхлопных газов в составе двух негазоплотных заслонок с электроприводом;
  • Трехходовой клапан контура охлаждения двигателя с электроприводом;
  • Обвязка ТМ (затворы на воду и иная трубопроводная арматура, трубопроводы внутренней обвязки ТМ в границах ТМ);
  • Промышленный глушитель ТММ-ПГ.300 (уровень шумоглушения 9-15 дБА);
  • Шкаф автоматического управления, который отслеживает и управляет работой теплового модуля. (контроль температуры, уровня воды и давления в УТГ и УТА, запуск и останов СУТ);

Оба контейнера изготовлены с фирменной символикой.

Закажите расчет бюджета аналогичного проекта - напишите нам запрос на

Направим на ваш объект инженера для бесплатного предпроектного осмотра, подберем оборудование, составим смету

Следующий проект

Форма заявки

Дизельные электростанции:
Бюджетные:
Оптимальные по качеству и цене:
Премиальные: