Электронная почта:

Запрос в мессенджер:

Тел. и время работы:
+7 (812) 207-52-94
Пн-Вс 7:00 - 20:00
Заказ оборудования по телефону:
8 (800) 511-59-77
Выбранный город:
Санкт-Петербург
Митрофаньевское шоссе, 8А, Лит. Б
  • Надежные бренды и подтвержденные стандарты качества:
Заказ оборудования по телефону: 8 (800) 511-59-77

Контейнеры с ДГУ на шасси для ЦОДа ММТС-9

Заказчик Московская междугородная телефонная станция №9
Фото

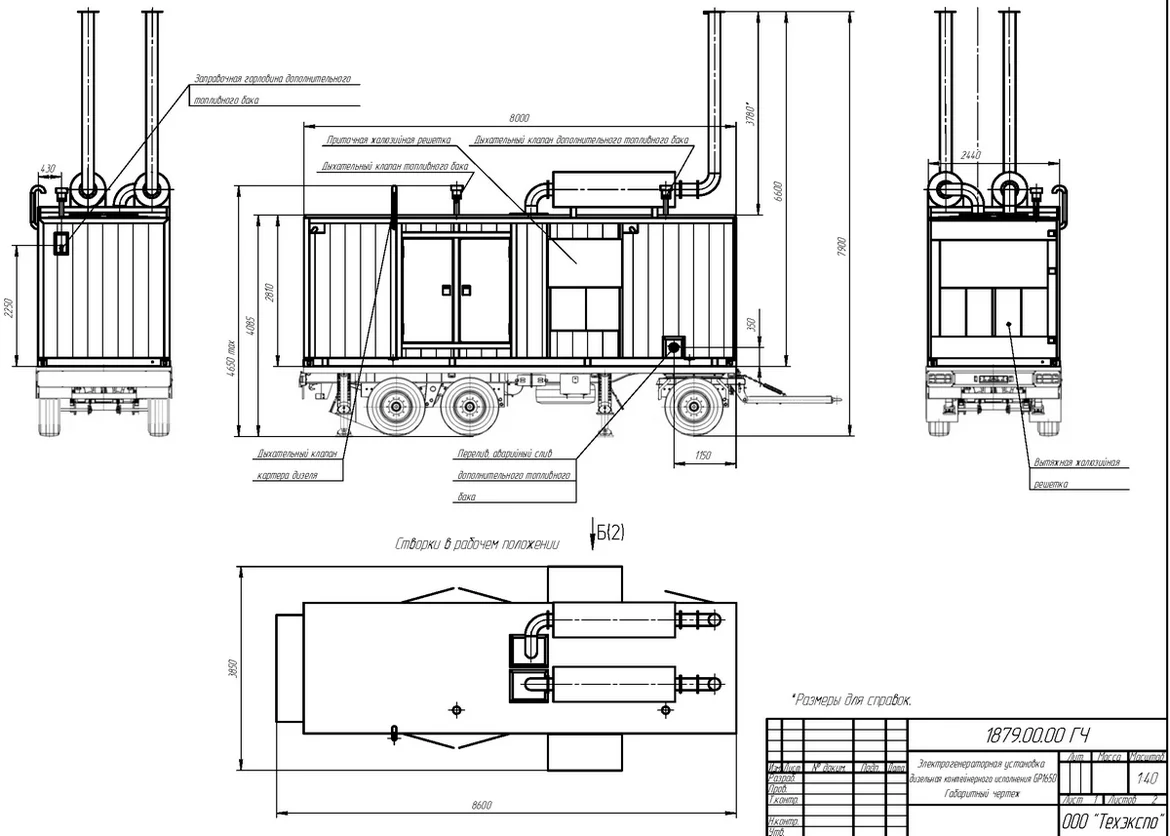
В 2019 г. компания «Техэкспо» обеспечила резервным электроснабжением АО «Московская междугородная телефонная станция №9» (АО «ММТС-9»). Мы поставили три дизельных электростанции ТЭ.1200C-Т400-2РН (Россия) собственного производства мощностью 1200 кВт каждая. ДГУ размещаются в утепленном цельнометаллическом контейнере, который обладает второй степенью огнестойкости. Габаритные размеры контейнера 8000х2400х2800 мм, масса контейнера (без топлива) с установленным в нем оборудованием – не более 25 тонн. Контейнер имеет негорючую теплоизоляцию и рассчитан для работы в диапазоне температур окружающего воздуха от - 50 до +45 °C. Все материалы, используемые для изготовления контейнера устойчивы и надежны в рабочей среде, и имеют сертификаты, характеризующие химический состав, механические свойства и результаты испытаний.

Чертеж: контейнеры с ДГУ на шасси для ЦОДа ММТС-9
Чертеж: контейнеры с ДГУ на шасси для ЦОДа ММТС-9
Чертеж: контейнеры с ДГУ на шасси для ЦОДа ММТС-9
Чертеж: контейнеры с ДГУ на шасси для ЦОДа ММТС-9

Дополнительно в контейнере размещен топливный бак на 1000 л. с системой автоматической топливоподкачки. Для удобства заправки ДГУ от передвижных топливозаправочных средств в контейнере предусмотрена внешняя заправочная горловина. Топливная система оснащена датчиками, которые контролируют уровень топлива в баке. Для отвода воздуха и паров топлива наружу контейнера предусмотрена вентиляция топливного бака.

Контейнер с ДГУ на шасси для ЦОДа ММТС-9
Контейнер с ДГУ на шасси для ЦОДа ММТС-9


Контейнер оснащен системой освещения и пожарной безопасности (аэрозольное пожаротушение). Система управления ДГУ также размещена в контейнере. Она состоит из:

• панели управления электроагрегатом;

• шкафа силового (ШС);

• щита собственных нужд (ЩСН).

Дизель-генератор в контейнере установлен на автомобильный шасси-прицеп модели САВ 83433. Он оборудован телескопическими вертикальными стойками-упорами, выдвигаемых вручную для вывешивания мостовых осей прицепа и выравнивания горизонтального уровня контейнера в стояночном рабочем положении ДЭС на прицепе.


Закажите расчет бюджета аналогичного проекта - напишите нам запрос на

Направим на ваш объект инженера для бесплатного предпроектного осмотра, подберем оборудование, составим смету

Следующий проект

Форма заявки

Дизельные электростанции:
Бюджетные:
Оптимальные по качеству и цене:
Премиальные: