Электронная почта:

Запрос в мессенджер:

Тел. и время работы:
+7 (812) 207-52-94
Пн-Вс 7:00 - 20:00
Заказ оборудования по телефону:
8 (800) 511-59-77
Выбранный город:
Санкт-Петербург
Митрофаньевское шоссе, 8А, Лит. Б
  • Надежные бренды и подтвержденные стандарты качества:
Заказ оборудования по телефону: 8 (800) 511-59-77

Поставка и ПНР шести ДГУ 12 МВт для промышленного предприятия ЮФО

Общая мощность 12000 кВт
Заказчик Промышленное предприятие ЮФО
Фото
Задача Обеспечить аварийное электроснабжение крупного социального объекта в условиях продолжительного полного обесточивания.
Решение Поставка 6 передвижных дизель-генераторных установок мощностью 2 МВт в контейнерах с возможностью параллельной работы между собой.

В марте 2025 года специалисты «Техэкспо» выполнили масштабный и технологически сложный проект: электроснабжением был обеспечен значимый социальный объект в Южном Федеральном округе.

Для комплексного решения задач заказчика было поставлено 6 передвижных дизель-генераторных установок ТЭ.2000П-Т10500-3РН мощностью 2 МВт каждая с возможностью параллельной работы между собой, а также произведены шеф-монтажные и пусконаладочные работы.

В соответствии с техническим заданием и пожеланиями заказчика поставку, наладку и испытания оборудования удалось выполнить в установленные сроки.

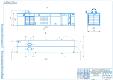
Передвижные дизель-генераторные установки (ПДГУ) (цельнометаллические контейнеры на низкорамных полуприцепах) были поставлены вместе с комплектом ЗИП на срок эксплуатации до 24 месяцев.

Основные характеристики ПДГУ ТЭ.2000П-Т10500-3РН на базе двигателя Yuchai YC16VC3300-D31:

  • Номинальная мощность, – 2 (х6) МВт
  • Напряжение — 10500 В
  • Частота тока — 50 Гц
  • Ток — переменный
  • Количество фаз — 3
  • Степень автоматизации по (ГОСТ Р 50783-95) — 3
  • Габаритные характеристики —на шасси в развернутом состоянии: 18650х3500х4800 мм
  • Полная масса одного контейнера ПДГУ не более: 46 000 кг
  • Полная масса ПДГУ в сборе с полуприцепом: 58 000 кг

В состав ПДГУ входит электроагрегат, атмосферозащитная оболочка — контейнер,топливная система, масляная система, система газовыпуска, система охлаждения, система отопления, система освещения, система пожарной безопасности, система автоматики управления электростанцией и распределения нагрузки, распределительное устройство и колесный полуприцеп.

Электроагрегат состоит из первичного двигателя и генератора, смонтированных на амортизаторы на одной раме.

Технические характеристики двигателя Yuchai YC16VC3300-D31: 

  • Тип — четырёхтактный V-образный водяного охлаждения, с газотурбинным наддувом и промежуточным охлаждением наддувочного воздуха
  • Номинальная мощность — 2205 кВт
  • Максимальная мощность — 2426 кВт
  • Число цилиндров — 16
  • Рабочий объём — 105,56 л
  • Расход топлива при 75% номинальной нагрузки — 401,1 л

Технические характеристики генератора Engga EG560GSG:

  • Тип генератора — высоковольтный, двухопорный, синхронный генератор с противоконденсатным подогревателем
  • Номинальная мощность — 2000 кВт
  • Максимальная мощность — 2200 кВт
  • Напряжение — 10500 В
  • Частота —50 Гц

Контейнер электростанции:

Контейнер ПДГУ представляет собой атмосферозащитную оболочку. Контейнер выполнен по цельносварной технологии со степенью защиты по ГОСТ 14254 — не ниже IP43.

Теплоизоляция корпуса контейнера, потолок и стены выполняется базальтовой ватой, толщиной не менее 50 мм. Каркас пола контейнера имеет усиленную под электроагрегатом конструкцию. Пол выполнен из рифленого металлического листа толщиной не менее 3 мм. Конструкция контейнера выполнена с усилением верхней части каркаса модуля, исходя из схемы строповки. Наружная обшивка контейнера выполнена из профилированных листов стали толщиной не менее 1,2 мм.

Все элементы конструкции контейнерного модуля, подвергающиеся коррозии, имеют защитное лакокрасочное покрытие белого цвета по ГОСТ 9.104-2018, ГОСТ 9.032-74, ГОСТ 9.401-2018, с учётом климатических условий площадки и эксплуатации. Срок службы защитных покрытий — не менее 5 лет.

Предусмотрена стационарная лестница для подъема на крышу контейнера ПДГУ.

Все дверные проёмы контейнера оснащены откидными лестницами. На каждой двери установлен концевой выключатель рабочего освещения, и фиксатор открытия двери. Двери имеют систему запирания контейнерного типа с навесным замком.



Контейнер ПДГУ имеет деление на отсеки: агрегатный, электротехнический и топливный.Отсеки разделены шумоизолированной перегородкой.

В агрегатном отсеке размещены электроагрегат, ящик аккумуляторных батарей, масляный бак с горловиной для дозаправки маслом и с системой автоматической доливки масла в картер двигателя, шкаф управления ДГУ, щит собственных нужд ЩСН (укомплектован кабелем питания 4х6 мм 2 длиной 150 метров, подключение СН произведено снаружи контейнера через влагозащищенный разъем).

В электротехническом отсеке смонтированы щитовое оборудование систем автоматики управления и распределения нагрузки и приборы пожарной сигнализации, шкаф системы пожаротушения, две катушки с кабелями питания сечением 3х95+1х25 мм2, длиной 100 метров каждый.

Кабельные катушки располагаются в электротехническом отсеке стационарно и предназначены для оперативного подключения потребителей. Данное техническое решение обеспечивает автономность ПДГУ и значительно ускоряет её разворачивание на месте эксплуатации.

В топливном отсеке размещены электрический топливозакачивающий насос с системой рециркуляции топлива, барабан с шлангом заправки дизельного топлива, ручной топливозакачивающий насос, топливный бак с горловиной. Управление топливозакачивающим насосом обеспечивается из топливного отсека. В топливном отсеке также предусмотрен люк, для возможности дозаправки топливом, за которым находится барабан со шлангом и обратным клапаном.

Система рециркуляции топлива оснащена фильтром сепаратором c водоотделителем и предназначена для периодической очистки топлива, хранящегося в топливном баке, от воды.

Питание топливом происходит от расходного топливного бака объемом 4500 литров, обеспечивающего беспрерывную работу дизельного генератора на номинальной мощности в течение не менее 8 часов.

Перед отправкой заказчику оборудование успешно прошло полный комплекс приёмочных испытаний по ГОСТ 15.301 и приёмо-сдаточных испытаний по ГОСТ 15.309. На испытаниях были полностью подтверждены все заявленные характеристики оборудования и проверена работоспособность всех систем ПДГУ.

Бригада специалистов «Техэкспо» выполнила полный комплекс шеф-монтажных и пусконаладочных работ в объекте эксплуатации Заказчика.

Закажите расчет бюджета аналогичного проекта - напишите нам запрос на

Направим на ваш объект инженера для бесплатного предпроектного осмотра, подберем оборудование, составим смету

Следующий проект

Форма заявки

Дизельные электростанции:
Бюджетные:
Оптимальные по качеству и цене:
Премиальные: