Поставка и ПНР 7 ДГУ 1260 кВт для крупного промышленного предприятия ЮФО
| Общая мощность |
1260 кВт
|
| Заказчик |
Промышленное предприятие |
| Фото |
|
| Задача |
Обеспечить резервное энергоснабжение ответственных потребителей крупного промышленного объекта в условиях частичного или полного обесточивания. |
| Решение |
Оперативная поставка семи дизель-генераторных установок мощностью 10 кВт и 50 кВт в кожухе, 0,3 МВт и 0,5 МВт в контейнерном исполнении комплектно с системами вентиляции, пожаротушения и контроля доступа. В комплект поставки также был включен необходимый для проведения ТО1 ЗИП. |
Наш заказчик, градообразующее промышленное предприятие непрерывного цикла изготовления, имеющее большое значение для развития ЮФО, обратилось в компанию «Техэкспо» для решения важнейшей задачи — обеспечения резервного энергоснабжения ответственных потребителей одного из своих объектов. Принимая во внимания все требования и пожелания заказчика, а также сжатые сроки выполнения проекта, мы предложили оптимальное решение для закрытия всех потребностей данной площадки в обеспечении резервирования электроснабжения.
Особенность этого проекта в том, что наши эксперты должны были оперативно выполнить изготовление ДГУ различной мощности контейнерного исполнения, а также в кожухе:
- 1 ДГУ мощностью 500 кВт на базе двигателя Yuchai,
- 2 ДГУ по 300 кВт, на базе двигателя Yuchai,
- 1 ДГУ 10 кВт на базе двигателя Lifan,
- 3 ДГУ по 50 кВт на базе двигателя Cummins.
Проектная команда изготовила оборудование и провела успешные приемно-сдаточные испытания с представителями заказчика ранее срока, указанного в договоре.
Приведем подробные характеристики поставленного заказчику оборудования.
Дизель-генераторная установка ТЭ.500С-Т400-2РН 500кВт в контейнере с двигателем Yuchai обладает следующими техническими характеристиками:
- максимальная мощность — 550 кВт / 687,5 кВА;
- марка/модель двигателя — Yuchai YCTD20840-G31;
- тип охлаждения — жидкостное;
- регулятор оборотов — электронный;
- объем двигателя — 15,59;
- емкость топливного бака — 930 л;
- напряжение 400 В;
- модель генератора — HC434FS;
- тип генератора — синхронный, бесщеточный;
- исполнение — в контейнере.
Дизель-генераторная установка ТЭ.300С-Т400-2РН 300кВт в контейнере с двигателем Yuchai имеет:
- максимальная мощность — 330 кВт/ 413 кВА;
- марка/модель двигателя — Yuchai YCMJ12TAA500-G20;
- тип охлаждения — жидкостное;
- объем двигателя — 11,726 л;
- емкость топливного бака — 660 л;
- напряжение 400 В;
- модель генератора — HC434FS;
- тип генератора — синхронный, бесщеточный;
- исполнение — в контейнере.
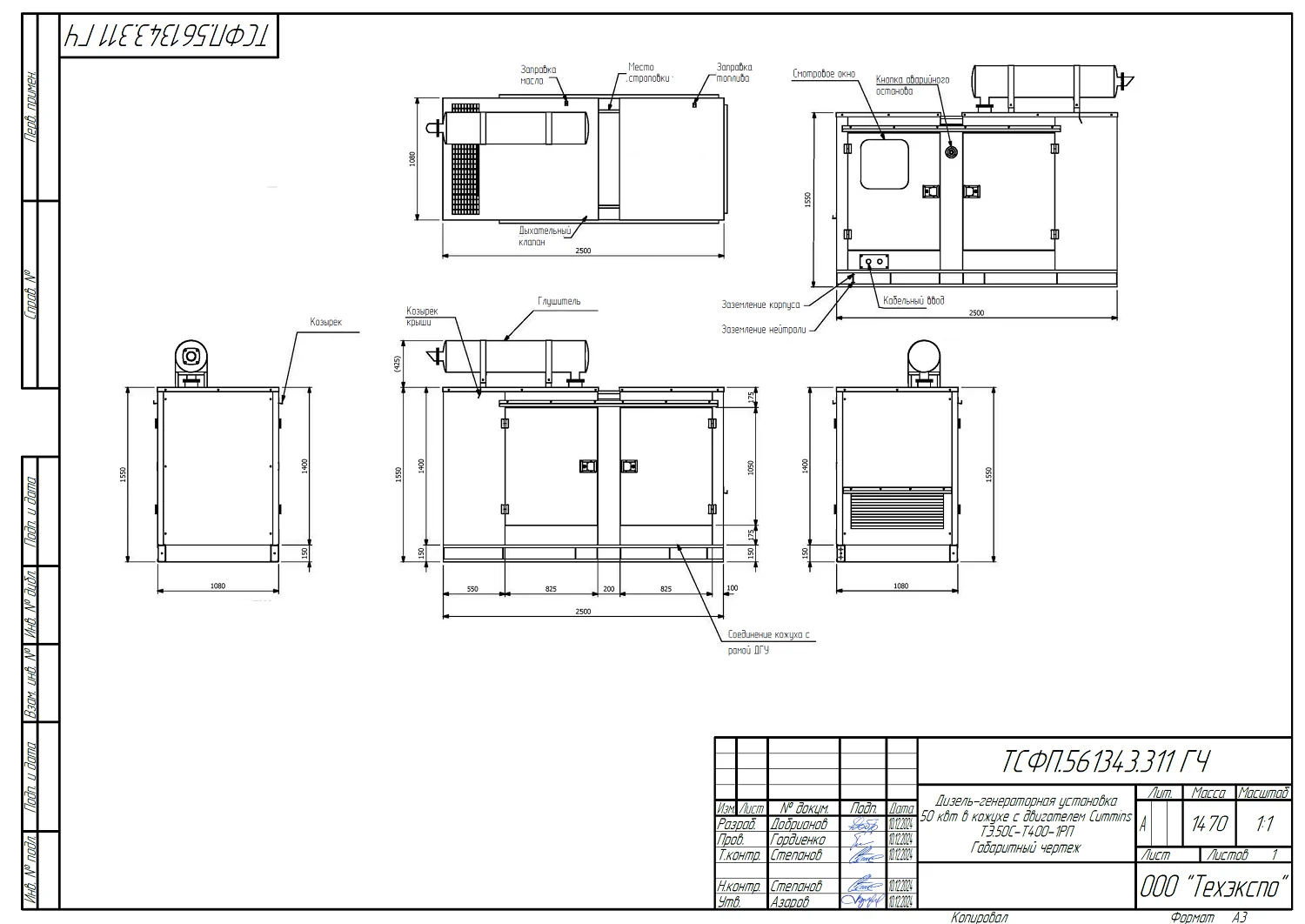
Дизель-генераторная установка ТЭ.50С-Т400-2РП 50кВт в кожухе с двигателем Cummins имеет такие технические свойства:
- максимальная мощность — 55 кВт/68,75 кВА;
- марка/модель двигателя — Cummins 4BTA3.3-G11;
- модель генератора — S2L1D-E41;
- напряжение 400 В;
- тип охлаждения — жидкостное;
- объем двигателя — 3,9 л;
- емкость бака — 120 л;
- исполнение в шумозащитном кожvхе.
Дизель-генераторная установка ТЭ.12С-Т400-2Р 380В с самой малой мощностью в этом проекте 10кВт обладает такими характеристиками:
- Количество фаз — 3;
- Напряжение — 400/230 В;
- Степень защиты — IP23;
- Модель двигателя — LT290F;
- Система охлаждения — воздушная.
Отдельно стоит остановиться на технических особенностях трех контейнеров для ДГУ в комплекте этой поставки:
- Размеры контейнеров: 6000х2300х2600;
- Утепление: сэндвич-панели 50 мм — в соответствии с температурным режимом региона;
- Распашные двери оборудованы запорными устройствами, датчиками контроля доступа и уплотнением;
- Приточно-вытяжная вентиляция с автоматическим управлением;
- Система воздухозабора с электроуправляемыми воздушными клапанами с электроприводом;
- Рабочее и аварийное освещение контейнера — светодиодное, рабочее освещение — 220В, аварийное — 24В от АКБ;
- Автоматическая система автономного пожаротушения;
- Комплект ручного пожаротушения (огнетушитель типа ОУ);
- Система газовыхлопа, в комплекте с глушителем;
- Дополнительная антикоррозийная обработка.
Габаритный чертеж дизель-генераторной установки 50 кВт в кожухе с двигателем Cummins
Поставка и ПНР 7 ДГУ 1260 кВт для крупного промышленного предприятия ЮФО – фото 1 из 9
Поставка и ПНР 7 ДГУ 1260 кВт для крупного промышленного предприятия ЮФО – фото 2 из 9
Поставка и ПНР 7 ДГУ 1260 кВт для крупного промышленного предприятия ЮФО – фото 3 из 9
Поставка и ПНР 7 ДГУ 1260 кВт для крупного промышленного предприятия ЮФО – фото 4 из 9
Поставка и ПНР 7 ДГУ 1260 кВт для крупного промышленного предприятия ЮФО – фото 5 из 9
Поставка и ПНР 7 ДГУ 1260 кВт для крупного промышленного предприятия ЮФО – фото 6 из 9
Поставка и ПНР 7 ДГУ 1260 кВт для крупного промышленного предприятия ЮФО – фото 7 из 9
Поставка и ПНР 7 ДГУ 1260 кВт для крупного промышленного предприятия ЮФО – фото 8 из 9
Поставка и ПНР 7 ДГУ 1260 кВт для крупного промышленного предприятия ЮФО – фото 9 из 9
Поставка и ПНР 7 ДГУ 1260 кВт для крупного промышленного предприятия ЮФО – чертеж из проектной документации 1 из 2
Поставка и ПНР 7 ДГУ 1260 кВт для крупного промышленного предприятия ЮФО – чертеж из проектной документации 2 из 2
Направим на ваш объект инженера для бесплатного предпроектного осмотра, подберем оборудование, составим смету