Электронная почта:

Запрос в мессенджер:

Тел. и время работы:
+7 (812) 207-52-94
Пн-Вс 7:00 - 20:00
Заказ оборудования по телефону:
8 (800) 511-59-77
Выбранный город:
Санкт-Петербург
Митрофаньевское шоссе, 8А, Лит. Б
  • Надежные бренды и подтвержденные стандарты качества:
Заказ оборудования по телефону: 8 (800) 511-59-77

Изготовление МКС 18 единиц и ДЭС ТЭ.25С-Т400-2РН 18 единиц, поставка ЗИП

Общая мощность 450 кВт
Заказчик Промышленное предприятие
Фото
Задача Обеспечить связь и коммуникации для объектов Заказчика, расположенных на удалении друг от друга в труднодоступной местности и обеспечить пункты связи надежным энергоснабжением малой мощности.
Решение Изготовление и поставка мобильных комплексов связи — модульных сооружений, состоящих из мобильных блоков-контейнеров связи (МКС) и быстровозводимых сборных антенно-мачтовых сооружений (АМС), а также поставка дизельных электростанций для них.


«Техэкспо» осуществило поставку для проекта государственного масштаба с горизонтом развития свыше 50 лет. Пункт назначения для поставки оборудования находится на Дальнем Востоке Российской Федерации. Поэтому в соответствии с запросом и пожеланиями Заказчика вся документация по проекту была выполнена на 2 языках — русском и английском.

В чем особенности проекта?

Главная особенность проекта — в реализации стандартов и соответствии продукции фирменному стилю Заказчика. Для выполнения данного заказа компания «Техэкспо» не только изготовила необходимое количество единиц продукции, но и уделила особое внимание техническим требованиям Заказчика по условиям эксплуатации в условиях субарктического климата. По проекту было предусмотрено также специальное оформление контейнеров: на них был нанесен брендинг Заказчика в соответствии с запросом в рамках утвержденного дизайн-проекта.

Главные технические особенности проекта

Всего по проекту было поставлено 18 мобильных комплексов связи (МКС) с быстровозводимыми сборными антенно-мачтовыми сооружениями (АМС), и 18 комплектов ЗИП для них. А также 18 дизельных электрических станций ТЭ.25С-Т400-2РН для них с комплектом ЗИП.

МКС предназначены для размещения в Чукотском АО: на Полярном круге, в 430 км по воздуху от порта Певек на побережье Северного Ледовитого океана. Минимальный и максимальный пределы температуры воздуха от -60˚ до +34˚С.

По климатическим условиям территория размещения МКС относится к району Крайнего Севера, с суровым субарктическим климатом, с повсеместной мерзлотой грунтов.

МКС предназначены для размещения оборудования базовой станции связи (БС), а также для обеспечения его нормального функционирования без постоянного присутствия персонала. Мобильность МКС обеспечена наличием металлических полозьев для передвижения по поверхности в условиях снежного покрова.

VO-prom-techexpo-2025 (6).PNG

Особенности оборудования

Технические характеристики БК МКС:

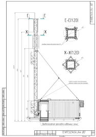
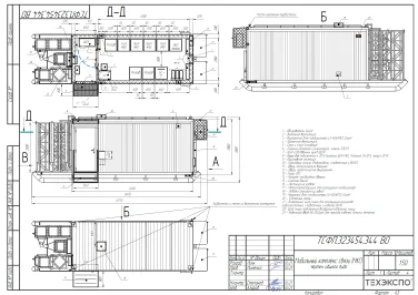
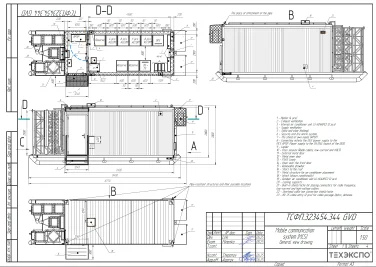
  • Транспортные габаритные размеры, мм — 8770х3100х3255;

  • Габаритные размеры в рабочем положении, мм – 8770х3300х16580;

  • Высота антенно-мачтового сооружения от опорной рамы до верхней точки — 15 м (без учета молниеприемника);

  • Срок службы МКС — не менее 25 лет.

Комплектация МКС:

  • Блок-контейнер цельносварной с технологическим оборудованием;

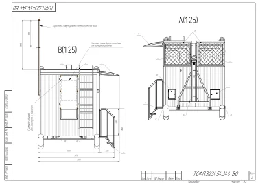
  • Приставная лестница к входной двери с ограждением;

  • Козырек над входной дверью;

  • Лестница на кровлю МКС;

  • Металлоконструкции для размещения внешних блоков кондиционеров;

  • Металлические полозья;

  • Стопорные опоры;

  • Сцепное устройство (дышло);

  • Сборное антенно-мачтовое сооружение;

  • Трубостойки для крепления внешнего кабеля;

  • Комплект оборудования для подъёма АМС.


В конструкции МКС применены решения для исключения промерзания в местах установки дверных проемов, кабельных вводов и других конструкций.

Особое внимание было уделено сохранению надежности работоспособности оборудования в условиях субарктического климата в части утепления блок-контейнера, решений по подключению МКС к кабельным линиям объекта.

При реализации ДЭС также был предусмотрен автоматический подогрев масла в картере, охлаждающей жидкости от жидкостного подогревателя, дизельный отопитель воздуха. Ёмкость аккумуляторов ДЭС предусмотрена с запасом. Также установлен симметрирующий трехфазный трансформатор для обеспечения баланса нагрузки.

Цветовое решение внешней отделке БКС соответствуют требованиям фирменного стиля Заказчика. Цветовое решение и брендинг контейнеров были тщательно согласованы до начала работы над проектом.

Антенно-мачтовое сооружение (АМС)

В комплект МКС входит АМС, сборно-разборной конструкции, состоящее из секций одинаковой длины. С целью увеличения устойчивости предусмотрено крепление АМС к несущим частям МКС с помощью металлических распорок, обеспечивающих необходимую жесткость и прочность конструкции. Также для обеспечения устойчивости МКС были предусмотрены растяжки.

Для каждого МКС была поставлена ДЭС в составе 1 ДГУ по 25 кВт для установки на месторождении в качестве основного источника электроэнергии.

Комплектность ДЭС:

  • Блок-контейнер цельносварной с технологическим оборудованием;
  • ДГУ мощностью 25 кВт;
  • Топливный бак 950 л;
  • Съемный козырек;
  • Съёмный дыхательный клапан топливного бака;
  • Внешняя заливная топливная горловина;
  • Трансформатор симметрирующий трехфазный.

Основные характеристики ДЭС ТЭ.25С-Т400-2РН производства ООО «Техэкспо»:

Исполнение: контейнерное

Основная мощность, кВт/кВА — 25 / 31

Номинальная сила тока, А — 45

Род тока — переменный, трехфазный

Расход топлива при нагрузке 100 %, л/ч — 7,6

Емкость штатного топливного бака, л — 950

prom-techexpo-2025 (6) 2.png

Характеристики двигателя YANMAR 4TNV98:

Тип двигателя — дизельный, четырехтактный

Основная мощность, кВт — 30,7

Рабочий объём двигателя, л — 3,319

Количество, расположение цилиндров — 4, рядное

Частота вращения двигателя, об/мин —1500

Охлаждение жидкостное

Вид топлива — сезонное дизельное топливо


Характеристики генератора Leroy Somer LSA42.3S5 (AREP)

Тип альтернатора — синхронный 4-полюсный

Автоматический регулятор напряжения (AVR) до 10 секунд — 300% номинального тока

Допустимый ток короткого замыкания — 300%, в течение 10 секунд

Точность регулирования напряжения +/-0,5%

Изоляция класс Н

Уровень технической защиты IP 23


Гарантийный срок эксплуатации на поставленную продукцию составляет 24 месяца с момента ввода в эксплуатацию. Проект удалось закончить в срок и исполнить все пожелания заказчика.

     

Закажите расчет бюджета аналогичного проекта - напишите нам запрос на

Направим на ваш объект инженера для бесплатного предпроектного осмотра, подберем оборудование, составим смету

Следующий проект

Форма заявки

Дизельные электростанции:
Бюджетные:
Оптимальные по качеству и цене:
Премиальные: