Два мостовых крана и таль для стенда приемочных испытаний насосного оборудования реактора БРЕСТ-300
| Госзаказ |
Документация по госзакупке
|
| Заказчик |
Госкорпорация «Росатом» |
| Фото |
|
| Задача |
Обеспечить стенд приемочных испытаний насосного оборудования мостовыми кранами и талью с электроприводом. |
| Решение |
В 2022 года компания «Техэкспо» поставила грузоподъемное оборудование на площадку Сибирского химического комбината в Северске Томской области для строительства стенда приемо-сдаточных испытаний главного циркуляционного насосного агрегата реакторной установки на быстрых нейтронах со свинцовым теплоносителем БРЕСТ-ОД-300. |
Площадь здания испытательного стенда – 1740 м2, высота – 34 м. Стенд приемочных испытаний главного циркуляционного насосного агрегата (ГЦНА) РУ БРЕСТ – ОД – 300 является экспериментальной установкой. Для монтажа агрегатов стенда и ГЦНА внутри здания были спроектированы мостовые электрические краны. Оборудование было изготовлено по заданному проекту и доставлено на объект.
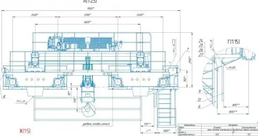
Кран мостовой электрический двухбалочный опорный:
- Грузоподъёмность: 50/10 т
- Пролёт: 28,0 м
- Высота подъёма: 25 м
- Установленная мощность: 120 кВт
- Тип управления: с подвесного пульта
Кран мостовой электрический однобалочный однопролетный подвесной:
- Грузоподъемность: 10 т
- Пролёт: 12 м
- Высота подъёма: 8 м
- Установленная мощность: 18,7 кВт
- Тип управления с подвесного пульта
Для помещения мастерской установлена таль электрическая с механизмом подъема и перемещения. С ее помощью будет перемещаться ремонтируемое оборудование.
- Грузоподъемность: 5 т
- Высота подъёма: 6.3 м
- Установленная мощность: 8.4 кВт
- Скорость подъема: 8 м/минута
- Скорость передвижения: 20 м/минута
Полномасштабный стенд имитирует близкие к реальным условия эксплуатации главного циркуляционного насосного агрегата реакторной установки на быстрых нейтронах со свинцовым теплоносителем БРЕСТ-ОД-300. Энергоблок с БРЕСТ-ОД-300 станет частью опытно-демонстрационного энергокомплекса (ОДЭК) с пристанционным ядерным топливным циклом. Новый реактор будет иметь установленную мощность 300 МВт.
Два мостовых крана и таль для стенда приемочных испытаний насосного оборудования реактора БРЕСТ-300 – фото 1 из 5
Два мостовых крана и таль для стенда приемочных испытаний насосного оборудования реактора БРЕСТ-300 – фото 2 из 5
Два мостовых крана и таль для стенда приемочных испытаний насосного оборудования реактора БРЕСТ-300 – фото 3 из 5
Два мостовых крана и таль для стенда приемочных испытаний насосного оборудования реактора БРЕСТ-300 – фото 4 из 5
Два мостовых крана и таль для стенда приемочных испытаний насосного оборудования реактора БРЕСТ-300 – фото 5 из 5
Два мостовых крана и таль для стенда приемочных испытаний насосного оборудования реактора БРЕСТ-300 – чертеж из проектной документации 1 из 5
Два мостовых крана и таль для стенда приемочных испытаний насосного оборудования реактора БРЕСТ-300 – чертеж из проектной документации 2 из 5
Два мостовых крана и таль для стенда приемочных испытаний насосного оборудования реактора БРЕСТ-300 – чертеж из проектной документации 3 из 5
Два мостовых крана и таль для стенда приемочных испытаний насосного оборудования реактора БРЕСТ-300 – чертеж из проектной документации 4 из 5
Два мостовых крана и таль для стенда приемочных испытаний насосного оборудования реактора БРЕСТ-300 – чертеж из проектной документации 5 из 5
Направим на ваш объект инженера для бесплатного предпроектного осмотра, подберем оборудование, составим смету