Электронная почта:

Запрос в мессенджер:

Тел. и время работы:
+7 (812) 207-52-94
Пн-Вс 7:00 - 20:00
Заказ оборудования по телефону:
8 (800) 511-59-77
Выбранный город:
Санкт-Петербург
Митрофаньевское шоссе, 8А, Лит. Б
  • Надежные бренды и подтвержденные стандарты качества:
Заказ оборудования по телефону: 8 (800) 511-59-77

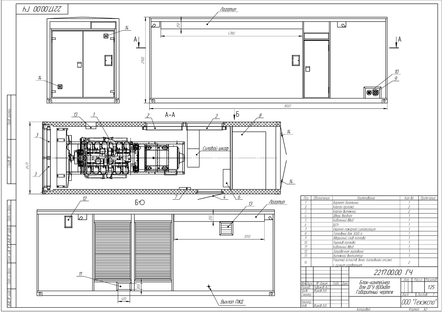
Контейнер для ДГУ 800 кВт и топливным отсеком для переработки лома цветных металлов

Заказчик ООО "Нординвэнс"
Фото
Решение В июле 2022 года «Техэкспо» изготовило утепленный цельносварной контейнер габаритами 8000х2500х2900 мм., состоящий из двух отсеков. В агрегатном отсеке размещено оборудование ДГУ, в топливном отсеке - топливный резервуар на 3 000 л. Снаружи контейнера выведен раструб для возможности заправки от пистолета топливозаправщика. Контейнер устанавливается на автомобильный прицеп модели 849062 и грузоподъёмностью 20 000 т. И крепится к нему с помощью твистлоков.


Закажите расчет бюджета аналогичного проекта - напишите нам запрос на

Направим на ваш объект инженера для бесплатного предпроектного осмотра, подберем оборудование, составим смету

Следующий проект

Форма заявки

Дизельные электростанции:
Бюджетные:
Оптимальные по качеству и цене:
Премиальные: