Электронная почта:

Запрос в мессенджер:

Тел. и время работы:
+7 (812) 207-52-94
Пн-Вс 7:00 - 20:00
Заказ оборудования по телефону:
8 (800) 511-59-77
Выбранный город:
Санкт-Петербург
Митрофаньевское шоссе, 8А, Лит. Б
  • Надежные бренды и подтвержденные стандарты качества:
Заказ оборудования по телефону: 8 (800) 511-59-77

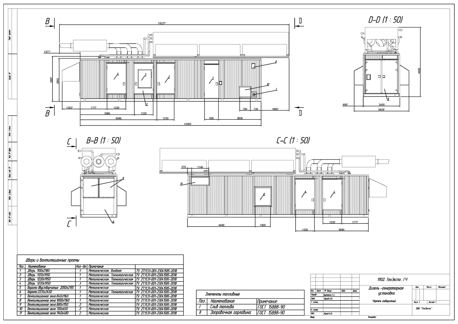
Контейнер для ДГУ 2,5 МВт с выносным радиатором и шумопоглощающими экранами

Заказчик НОВАТЭК
Фото

В 2019 г. ООО «Техэкспо» поставило дизельную электростанцию ТЭ.2500С-Т 400-ЗРН мощностью 2500 кВт для «Делового центра Юг» в г. Новый Уренгой Ямало-Ненецкого АО. Утепленный цельнометаллический блок-контейнер с габаритами 12000 х 2435 х 2850 мм изготовлен согласно проектной документации, имеет выносной радиатор и газовую систему пожаротушения. В качестве огнетушащего вещества используется Novek 1230 (хладон ФК-5-1-12) с использованием модулей газового пожаротушения МПА-NVC 1230.

Контейнер для ДГУ 2,5 МВт с выносным радиатором и шумопоглощающими экранами
Чертеж контейнера для ДГУ 2,5 МВт с выносным радиатором и шумопоглощающими экранами

Дизельная электростанция укомплектована увеличенным встроенным топливным баком на 3000 литров с выносной горловиной для удобной заправки станции, дополнительным масляным баком на 200 литров, системами вентиляции, охранно-пожарной сигнализации и автоматического газового пожаротушения, обогрева и системой освещения (основным и аварийным).

Система вентиляции в контейнере приточно-вытяжная с естественным и механическим пробуждением. Контейнер имеет проёмы в стенах для притока наружного и отвода горячего воздуха, а также дополнительные вентиляторы для принудительного продува в жаркий период времени.

Выпускные и впускные воздушные клапаны защищены от дождя и снега, а также сеткой для предотвращения проникновения животных.

Для звукоизоляции в верхней части клапана выброса воздуха установлен дополнительный шумопоглощающий экран, который состоит из панелей стекловолокна со степенью воспламенения класса 0. Снижение шума выхлопных газов обеспечивается резидентным глушителем с шумозащитным козырьком.

Закажите расчет бюджета аналогичного проекта - напишите нам запрос на

Направим на ваш объект инженера для бесплатного предпроектного осмотра, подберем оборудование, составим смету

Следующий проект

Форма заявки

Дизельные электростанции:
Бюджетные:
Оптимальные по качеству и цене:
Премиальные: