Электронная почта:

Запрос в мессенджер:

Тел. и время работы:
+7 (812) 207-52-94
Пн-Вс 7:00 - 20:00
Заказ оборудования по телефону:
8 (800) 511-59-77
Выбранный город:
Санкт-Петербург
Митрофаньевское шоссе, 8А, Лит. Б
  • Надежные бренды и подтвержденные стандарты качества:
Заказ оборудования по телефону: 8 (800) 511-59-77

Два контейнера энергокомплекса 1200 кВт для производителя биопрепаратов «Генериум»

Заказчик АО «Генериум»
Фото
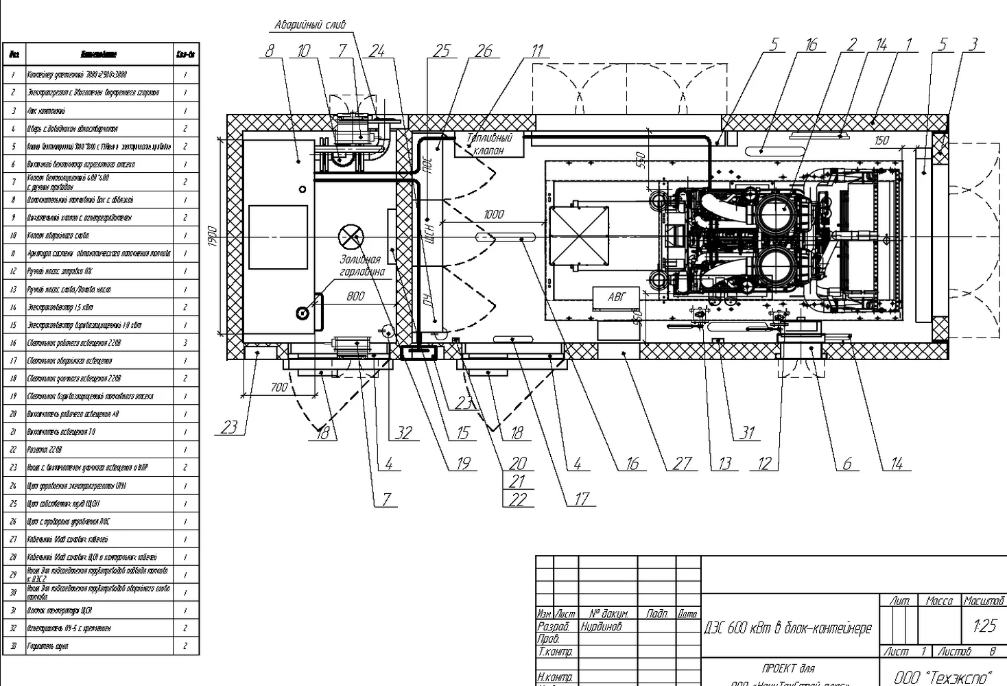
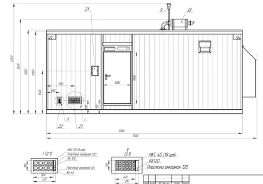
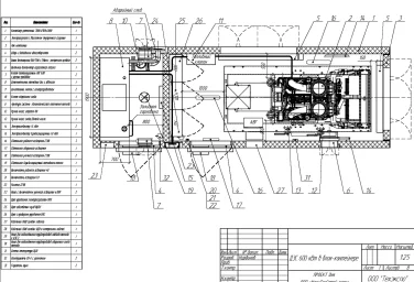
Решение В апреле 2021 года «Техэкспо» изготовило два контейнера для двух ДГУ мощностью 600 кВт. Цельносварные контейнеры с габаритами 7000х2500х3000 мм. В одном контейнере в отдельном отсеке размещен дополнительный топливный резервуар на 2000 л, который является общим для двух ДЭС. Он соединен системой топливопроводов для подачи топлива во вторую ДЭС.



Закажите расчет бюджета аналогичного проекта - напишите нам запрос на

Направим на ваш объект инженера для бесплатного предпроектного осмотра, подберем оборудование, составим смету

Следующий проект

Форма заявки

Дизельные электростанции:
Бюджетные:
Оптимальные по качеству и цене:
Премиальные: