Электронная почта:

Запрос в мессенджер:

Тел. и время работы:
+7 (812) 207-52-94
Пн-Вс 7:00 - 20:00
Заказ оборудования по телефону:
8 (800) 511-59-77
Выбранный город:
Санкт-Петербург
Митрофаньевское шоссе, 8А, Лит. Б
  • Надежные бренды и подтвержденные стандарты качества:
Заказ оборудования по телефону: 8 (800) 511-59-77

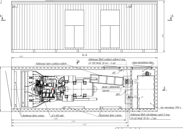
Два контейнера для ДГУ 800 кВт для контейнерного терминала (КТСП) в Петербурге

Заказчик ЗАО «Контейнерный терминал Санкт-Петербург» (КТСП)
Фото
Решение В 2021 году на производстве «Техэкспо» были изготовлены два цельносварных контейнера габаритами 8000х2500х2900 мм для ЗАО «Контейнерный терминал Санкт-Петербург». В каждом контейнере размещен дополнительный топливный бак на 1000 литров и дизель-генераторная установка с двигателем Cummins QST30G4 и альтернаторами Stamford HCI634J.


Закажите расчет бюджета аналогичного проекта - напишите нам запрос на

Направим на ваш объект инженера для бесплатного предпроектного осмотра, подберем оборудование, составим смету

Следующий проект

Форма заявки

Дизельные электростанции:
Бюджетные:
Оптимальные по качеству и цене:
Премиальные: