Электронная почта:

Запрос в мессенджер:

Тел. и время работы:
+7 (812) 207-52-94
Пн-Вс 7:00 - 20:00
Заказ оборудования по телефону:
8 (800) 511-59-77
Выбранный город:
Санкт-Петербург
Митрофаньевское шоссе, 8А, Лит. Б
  • Надежные бренды и подтвержденные стандарты качества:
Заказ оборудования по телефону: 8 (800) 511-59-77

Три ДГУ на 880 кВт для строительства АЭС «Эль-Дабаа» в Египте

Общая мощность 880 кВт
Заказчик АО «НИКИМТ-Атомстрой»
Фото
Задача Основное и резервное электроснабжение на период строительства АЭС «Эль-Дабаа».
Решение В мае 2022 года компания «Техэкспо» поставила три дизель-генераторных установки в кожухе общей мощностью 880 кВт в Египет для строительства АЭС «Эль-Дабаа».

АЭС «Эль-Дабаа» – 1-я атомная станция в Египте, которая будет построена по проекту Росатома в г. Эль-Дабаа на берегу Средиземного моря, в 300 км к северо-западу от г. Каир. АЭС будет состоять из 4 энергоблоков мощностью по 1200 МВт каждый с реакторами типа ВВЭР-1200 (водо-водяной энергетический реактор) поколения 3+.

Две ДГУ SDMO D330 марки ТЭ.240С-Т400-2РП (мощность каждой 240 кВт) и ДГУ SDMO D550 марки ТЭ.400С-Т400-2РП (мощностью 400 кВт) предназначены для основного или резервного электроснабжения в период строительства АЭС «Эль-Дабаа».


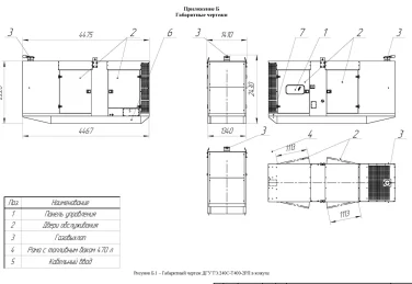
  • 2 шт. ДГУ SDMO D330 марки ТЭ.240С-Т400-2РП (мощность 240 кВт) изготовлена на базе дизельного двигателя Doosan P126TI-II и генератора Kohler KH0172OT. Топливный бак объемом 400 л. встроен в раму ДГУ. Габариты электростанции в кожухе — 4475х1410x2430 мм.
  • 1 шт. ДГУ SDMO D550 марки ТЭ.400С-Т400-2РП (мощностью 400 кВт) изготовлена на базе дизельного двигателя Doosan DP158LDF и генератора Kohler KH01982T. Топливный бак объемом 500 л. встроен в раму ДГУ. Габариты электростанции в кожухе — 5031х1560x2435 мм.


В состав каждой ДГУ входит следующее оборудование:

  • дизельный генератор;
  • шумозащитный кожух;
  • система отвода выхлопных газов;
  • система подкачки топлива и масла;
  • система слива охлаждающей жидкости, масла, топлива;
  • система автоматического управления электростанцией и автоматическими устройствами переключения нагрузки;
  • оборудование для обеспечения электробезопасности;
  • автомат защиты;
  • устройство автоматического ввода резерва (АВР);
  • комплект заземления для передвижных электроустановок;

В качестве блока управления используется APM303 для ДГУ на 240 кВт и APM403 для ДГУ на 400 кВт. С помощью него обеспечивается запуск и остановка ДГУ, и управление основными устройствами безопасности. Климатическое исполнение и условия эксплуатации ДГУ по ГОСТ 15150-69 — ТВ2/ОЖ2 — для макроклиматического района с влажным тропическим климатом.

Закажите расчет бюджета аналогичного проекта - напишите нам запрос на

Направим на ваш объект инженера для бесплатного предпроектного осмотра, подберем оборудование, составим смету

Следующий проект

Форма заявки

Дизельные электростанции:
Бюджетные:
Оптимальные по качеству и цене:
Премиальные: