Контейнерная ДЭС 500 кВт для золотодобывающего предприятия в Иркутской области
| Общая мощность |
500 кВт
|
| Заказчик |
ПАО «Высочайший» (GV Gold) |
| Фото |
|
| Решение |
В 2022 году компания «Техэкспо» поставила ДГУ мощностью 500 кВт для золотодобывающего предприятия в Иркутской области на ГОК «Высочайший». |
Месторождение Голец Высочайший расположено в 175 км от г. Бодайбо и включает в себя три золотоизвлекательные фабрики, пробирноаналитическую лабораторию, участок открытых горных работ и участок россыпной золотодобычи, вахтовый поселок. Общая мощность обогатительных фабрик ГОКа «Высочайший» составляет около 4,5 млн т руды в год.
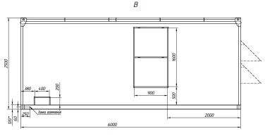
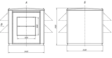
Дизельная электростанция ТЭ.500С-Т 400-2РН изготовлена в контейнерном исполнении. ДГУ на базе двигателя Doosan DP180LB имеет мощность 500 кВт. Утепленный цельносварной контейнер габаритами 6000х2400х2500 мм окрашен в фирменный цвет заказчика.
В составе электростанции: ЩСН, АВР, ЩР (Щит распределительный), системы вентиляции и газовыхлопа, аварийного и основного освещения, отопления, системы охранной и пожарной сигнализации.
Дополнительно в комплект поставки включены ЗИП: комплект масляного, воздушного и топливного фильтра и комплект ремней привода и генератора.
ДГУ доставлена с производства до грузополучателя в г. Бодайбо Иркутской области.
Контейнерная ДЭС 500 кВт для золотодобывающего предприятия в Иркутской области – фото 1 из 10
Контейнерная ДЭС 500 кВт для золотодобывающего предприятия в Иркутской области – фото 2 из 10
Контейнерная ДЭС 500 кВт для золотодобывающего предприятия в Иркутской области – фото 3 из 10
Контейнерная ДЭС 500 кВт для золотодобывающего предприятия в Иркутской области – фото 4 из 10
Контейнерная ДЭС 500 кВт для золотодобывающего предприятия в Иркутской области – фото 5 из 10
Контейнерная ДЭС 500 кВт для золотодобывающего предприятия в Иркутской области – фото 6 из 10
Контейнерная ДЭС 500 кВт для золотодобывающего предприятия в Иркутской области – фото 7 из 10
Контейнерная ДЭС 500 кВт для золотодобывающего предприятия в Иркутской области – фото 8 из 10
Контейнерная ДЭС 500 кВт для золотодобывающего предприятия в Иркутской области – фото 9 из 10
Контейнерная ДЭС 500 кВт для золотодобывающего предприятия в Иркутской области – фото 10 из 10
Контейнерная ДЭС 500 кВт для золотодобывающего предприятия в Иркутской области – чертеж из проектной документации 1 из 4
Контейнерная ДЭС 500 кВт для золотодобывающего предприятия в Иркутской области – чертеж из проектной документации 2 из 4
Контейнерная ДЭС 500 кВт для золотодобывающего предприятия в Иркутской области – чертеж из проектной документации 3 из 4
Контейнерная ДЭС 500 кВт для золотодобывающего предприятия в Иркутской области – чертеж из проектной документации 4 из 4
Направим на ваш объект инженера для бесплатного предпроектного осмотра, подберем оборудование, составим смету