Электронная почта:

Запрос в мессенджер:

Тел. и время работы:
+7 (812) 207-52-94
Пн-Вс 7:00 - 20:00
Заказ оборудования по телефону:
8 (800) 511-59-77
Выбранный город:
Санкт-Петербург
Митрофаньевское шоссе, 8А, Лит. Б
  • Надежные бренды и подтвержденные стандарты качества:
Заказ оборудования по телефону: 8 (800) 511-59-77

Две ДЭС 422 кВт и 500 кВт для строительства газопровода Харасавэйского месторождения на Ямале

Общая мощность 922 кВт
Заказчик ООО "ГСП-6"
Фото
Задача Обеспечение энергоснабжением строительство газопровода.
Решение

В 2022 году компания «Техэкспо» поставила две дизель-генераторные установки контейнерного типа мощностью 422 кВт и 500 кВт для строительства газопровода-подключения Харасавэйского газоконденсатного месторождения.

Харасавэйское месторождение расположено на полуострове Ямал. Проектный уровень добычи из сеноман-аптских залежей — 32 млрд куб. м газа в год. Для транспортировки добытого на Харасавэйском месторождении газа строится газопровод-подключение протяженностью около 100 км до Бованенковского месторождения. Затем газ будет поступать в Единую систему газоснабжения России.

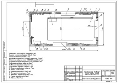
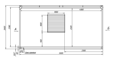
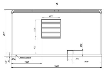
Две дизель-генераторные установки ТЭ.400С-Т400-2РН и ТЭ.500С-Т400-2РН контейнерного типа изготовлены на базе корейского двигателя Doosan DP158LD и Doosan DP180LB , генератора тока CROMPTON G1R355ME. Два цельносварных контейнера с утеплителем толщиной 100 мм. Габариты каждого контейнера: 5000х2300х2400 мм. Топливный бак встроен в раму ДГУ (900 л.). Автоматическая панель управления ДГУ на базе микропроцессорного контроллера TJ509-T. Дизельная электростанция оснащена системами освещения, вентиляции, отопления, пожарной сигнализации и пожаротушения.

Закажите расчет бюджета аналогичного проекта - напишите нам запрос на

Направим на ваш объект инженера для бесплатного предпроектного осмотра, подберем оборудование, составим смету

Следующий проект

Форма заявки

Дизельные электростанции:
Бюджетные:
Оптимальные по качеству и цене:
Премиальные: