| Общая мощность | 2400 кВт |
| Заказчик | Энергетическая компания |
| Фото | |
| Задача | Обеспечить резервный источник питания отечественной сборки для нужд крупного предприятия энергетической сферы на полуострове Камчатка в формате «под ключ», провести шеф-монтажные и пусконаладочные работы на объекте Заказчика. |
| Решение | Поставка двух дизельных станций общей мощностью 2,4 МВт в цельносварных контейнерах с увеличенной гарантией и расширенным комплектом ЗИП. |
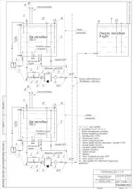
Дизель-генераторные установки предназначены для использования в качестве резервного источника электроснабжения потребителей населенного пункта и работают в дополнение к альтернативным источникам электрогенерации, таким как ветряные электростанции.
Поскольку электрогенерация от ВЭС носит стохастический характер даже несмотря на высокую ветреность региона поставки, Заказчик нуждался в стабильном резервном источнике электроэнергии, не зависимом от внешних факторов.

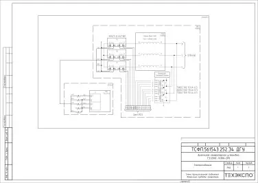
Цельносварные и антивандальные контейнеры с утеплением 100 мм предназначены для эксплуатации в температурном режиме от -50 до +50˚С. Контейнеры соответствуют III степени огнестойкости, оснащены критическим глушителем (-30-45 Дб) с каталитическим нейтрализатором выхлопных газов. Освещение — основное 220 В и аварийное 24В. Система пожарной безопасности представлена порошковой системой пожаротушения (АСПТ) и охранно-пожарной сигнализацией (ОПС). Вентиляция приточно-вытяжная на базе клапанов с автоматическими электроприводами. Топливная система включает расходный топливный бак на 990 л. с электрическим и ручным насосом подкачки топлива. Наружная обшивка контейнеров выполнена из профилированных листов стали толщиной не менее 1,5 мм, внутренняя обшивка стен и потолка выполнена из профилированных листов белого цвета, пол, стены и потолок контейнера имеют слой теплоизоляции из трудно горючего материала. Все элементы конструкции блок-контейнеров, подверженные процессам коррозии, защищены специальным покрытием.
На объекте Заказчика специалисты «Техэкспо» выполнили необходимые по проекту пусконаладочные работы:
Заказчику была предоставлена расширенная гарантия: 24 месяца или 1000 моточасов наработки. Она распространяется на все составные части и комплектующие поставки по проекту.