Электронная почта:

Запрос в мессенджер:

Тел. и время работы:
+7 (812) 207-52-94
Пн-Вс 7:00 - 20:00
Заказ оборудования по телефону:
8 (800) 511-59-77
Выбранный город:
Санкт-Петербург
Митрофаньевское шоссе, 8А, Лит. Б
  • Надежные бренды и подтвержденные стандарты качества:
Заказ оборудования по телефону: 8 (800) 511-59-77

ДГУ 60 кВт на двигателе Iveco для розничной сети супермаркетов «Магнит»

Общая мощность 60 кВт
Заказчик Розничная сеть «Магнит», АО «Тандер»
Фото
Задача Поставить энергетическое оборудование для розничной сети «Магнит»
Решение

Компания «Техэкспо» участвовала в тендере на поставку энергетического оборудования для розничной сети «Магнит» и выиграла его.

В летом 2018 года компания поставила дизель-генераторную установку собственного производства ТЭ.60С-Т400-2РН мощностью 60 кВт на базе двигателя Iveco N45 SM3A (Италия).

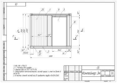
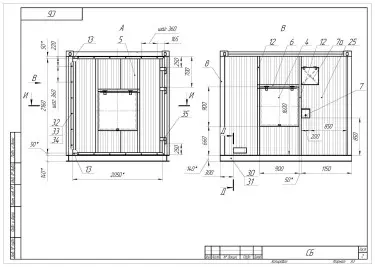
Дизельная электростанция выполнена в контейнерном исполнении с габаритами 3000х2140х2518 мм. Утепленный контейнер оснащен промышленным глушителем, системой вентиляции и соответствует 2-ой степени огнестойкости.

Основанием ДГУ служит мощная цельносварная рама, в которую встроен топливный бак на 140 литров. Дополнительно дизельная установка оборудована системой топливо-подкачки из внешних емкостей.

Закажите расчет бюджета аналогичного проекта - напишите нам запрос на

Направим на ваш объект инженера для бесплатного предпроектного осмотра, подберем оборудование, составим смету

Следующий проект

Форма заявки

Дизельные электростанции:
Бюджетные:
Оптимальные по качеству и цене:
Премиальные: