Электронная почта:

Запрос в мессенджер:

Тел. и время работы:
+7 (812) 207-52-94
Пн-Вс 7:00 - 20:00
Заказ оборудования по телефону:
8 (800) 511-59-77
Выбранный город:
Санкт-Петербург
Митрофаньевское шоссе, 8А, Лит. Б
  • Надежные бренды и подтвержденные стандарты качества:
Заказ оборудования по телефону: 8 (800) 511-59-77

Контейнеры для высоковольтных ДЭС 1,2 МВт в параллели для лесозаготовительного предприятия

Заказчик Лесозаготовительное производство
Фото

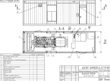
В 2019 и 2022 гг. компания "Техэкспо" поставила три высоковольтные дизель-генераторные установки мощностью 1200 кВт каждая и напряжением 6,3 кВ. Каждая станция размещена в утепленном цельнометаллическом контейнере, который оснащен распределительным устройством РУ-6,З кВ производства "ГК Электрощит-Самара".

Контейнеры для станций изготовлены на собственном производстве компании "Техэкспо", смонтированы системы жизнеобеспечения ДГУ, подключено оборудование высокого напряжения. Станции могут быть единственным источником энергии на объекте или объединяться в энергокомплекс в параллели друг с другом. Параллельный режим работы дизель-генераторов повышает ресурс мощности и надежности всей энергетической установки.

Комплектация поставленного оборудования:

Две дизель-генераторные установки на базе двигателя Mitsublshi мощностью 1200 кВт каждая и трехфазного силового электрогенератора выходного напряжения 6300 В. Один дизель-генератор на базе двигателя Cummins.

Панель автоматического управления с функцией параллельной работы DSE8610.

Встроенный топливный бак – 1000 литров для каждой станции.

Для постоянного обеспечения ДГУ дизельным топливом предусмотрена система автоматической топливоподкачки из внешнего резервуара.

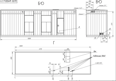
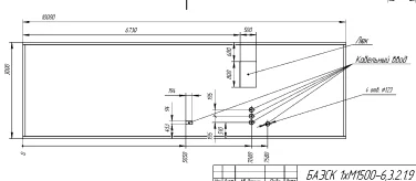
Три контейнера типа «Север» с габаритами: 9200х2800х3100 мм и один - 10000х3000х3600 мм.

В контейнерах установлены распределительные устройства РУ-6,3 кВ на ячейках КРУС-СЭЩ-75. Благодаря компактным габаритам, эта система обеспечивает оперативное энергоснабжение без необходимости возведения капитального здания. Комплектные распределительные устройства КРУС-СЭЩ-75 имеют класс напряжения 6 кВ.

Закажите расчет бюджета аналогичного проекта - напишите нам запрос на

Направим на ваш объект инженера для бесплатного предпроектного осмотра, подберем оборудование, составим смету

Следующий проект

Форма заявки

Дизельные электростанции:
Бюджетные:
Оптимальные по качеству и цене:
Премиальные: