Двигатель Mitsubishi S12H-PTA-S (0 кВт)
Mitsubishi S12H-PTA-S - 0 кВт купить | Двигатель в Техэкспо
Mitsubishi S12H-PTA-S - 0 кВт купить | Двигатель в Техэкспо
Mitsubishi S12H-PTA-S - 0 кВт купить | Двигатель в Техэкспо
Mitsubishi S12H-PTA-S - 0 кВт купить | Двигатель в Техэкспо
Mitsubishi S12H-PTA-S - 0 кВт купить | Двигатель в Техэкспо
Mitsubishi S12H-PTA-S - 0 кВт купить | Двигатель в Техэкспо
Mitsubishi S12H-PTA-S - 0 кВт купить | Двигатель в Техэкспо
-
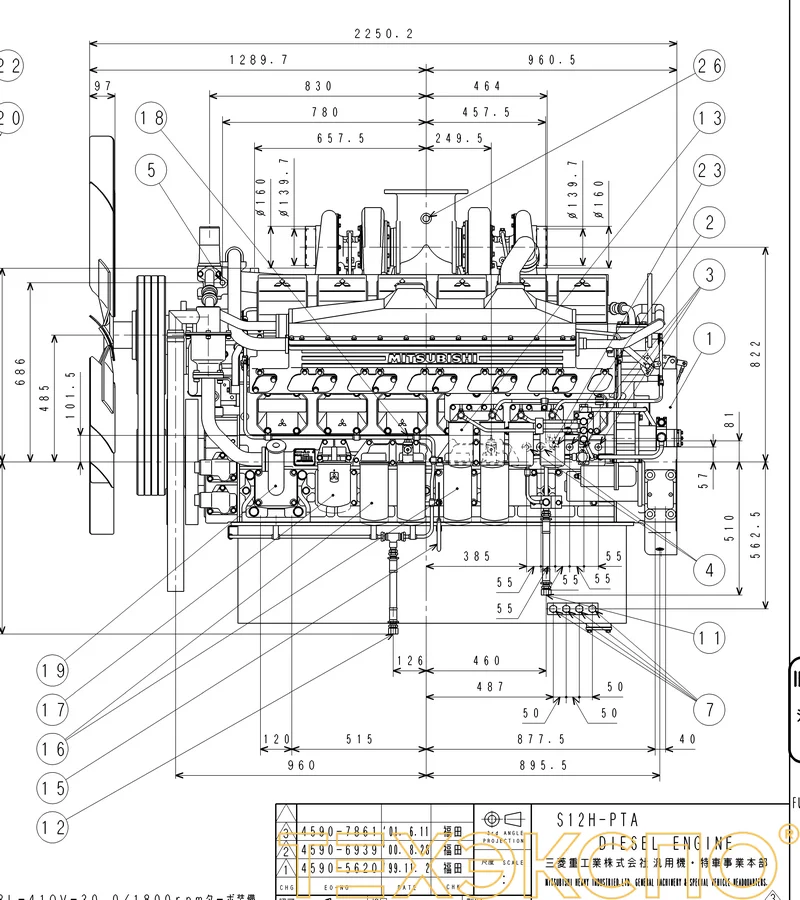
Объём двигателя, л:
37.1
-
Максимальная мощность, кВт:
1031 кВт / 1289 кВА
-
Расположение цилиндров:
12, V-образное
-
под заказ
-
Технические характеристики S12H-PTA-S
- ПроизводительMitsubishi
- СтранаЯпония
- Объём масляной системы, л200
- Тип охлаждения двигателяжидкостное
- Частота вращения, об/мин1 500
Описание S12H-PTA-S

Дизельные электростанции на двигателе S12H-PTA-S